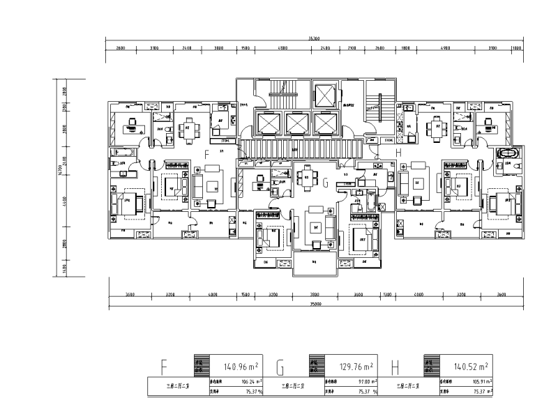
2梯3户超高层户型图纸设计cad
- 发布时间:2021-05-25
- 评论次数:0
- 浏览次数:0
- 文件大小:1.47 MB
- 收藏次数:0
-
文件名称:
附件-996599507688770595.dwg
超高层户型图下载
- 2梯4户超高层户型图纸设计cad
- 高层户型图纸-4 1房户型图纸设计_cad
- 高层二居三居经典户型图纸_cad户型图
- 高层户型图-4+1房户型图设计cad
- [CAD]小高层户型图纸集
- [CAD]小高层户型图纸
- 多层住宅户型图(CAD图纸)
- 高层户型图-164㎡户型设计
- 高层户型图-参考房型
- 各类平面户型图设计cad
- 多高层塔楼户型图纸集(效果图).
- 知名企业多种户型图纸设计.
- 高层户型图纸-参考房型_cad
- [CAD]高层户型图纸-城建户型汇总.dwg
- [CAD]高层户型图纸-7种标准户型.dwg
- [CAD]“爸爸去哪儿”-单户型图纸设计.dwg
- 40个经典别墅户型图_cad
- 高层户型图纸-金地强排户型汇总_cad
- 2层独栋别墅户型图纸_cad
- 25个多层住宅经典户型图cad图纸
全部评论
评论网友评论仅友表达个人看法,并不表明本站同意其观点,不得发布违反法律法规的内容!
