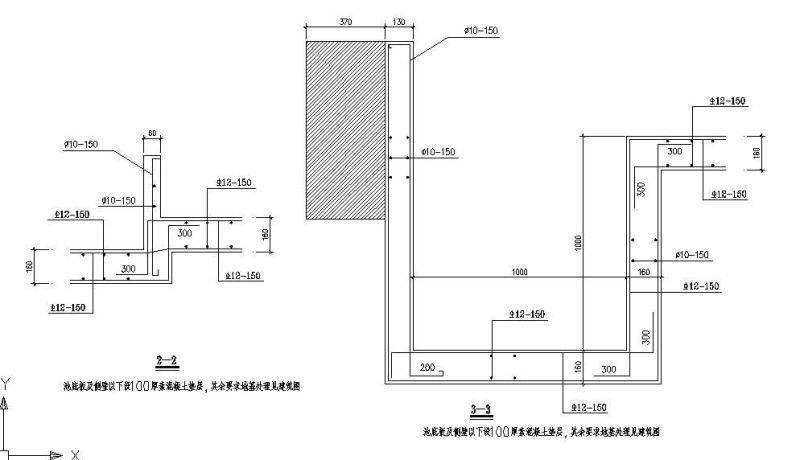
广场叠水结构详图纸cad平面图及大样图,剖面图
- 发布时间:2021-06-03
- 评论次数:0
- 浏览次数:0
- 文件大小:0.13 MB
- 收藏次数:0
-
文件名称:
附件-995797795865798786.rar
叠水结构详图下载
- 假山叠水详图纸(CAD施工图)(dwg)
- 入口景墙,水池叠水详图纸设计_CAD
- 叠水水景CAD节点详图纸设计
- 景观叠水、木平台及小品详图设计cad
- 假山叠水结构dwg格式CAD详图纸(剖面图)
- 园林小品九泉叠水施工详图纸(节点详图)()
- 小区特色叠水施工CAD详图纸(节点详图)(dwg)
- 九泉叠水施工dwg格式CAD图纸(节点详图纸)(平面图)
- 景观叠水、木平台及小品详图纸设计cad
- 广场叠水池结构详图纸cad平面图
- 特色叠水CAD施工图纸(dwg)
- 假山叠水CAD施工图纸(dwg)
- 叠水装饰台立面图纸cad
- 一份广场叠水结构详细设计CAD图纸(平面图)
- 福寿门三元叠水详图纸cad平面图,剖面图,立面图
- 扇形叠水施工详图纸cad平面图及立面图、剖面图、断面图
- 假山叠水做法详图纸cad剖面图及平面图,示意图
- 钢结构切水节点构造CAD详图纸.dwg
- 水试压后背结构节点构造详图纸cad
- 叠级花池施工立面CAD详图纸(dwg)
全部评论
评论网友评论仅友表达个人看法,并不表明本站同意其观点,不得发布违反法律法规的内容!
