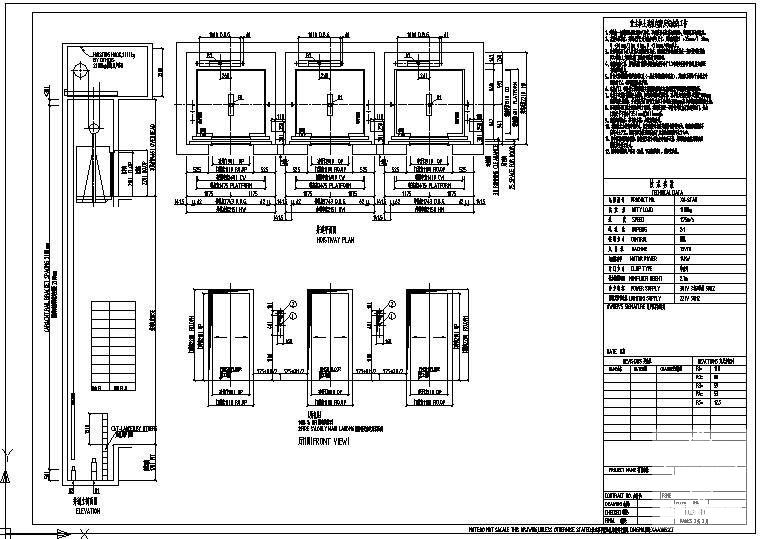
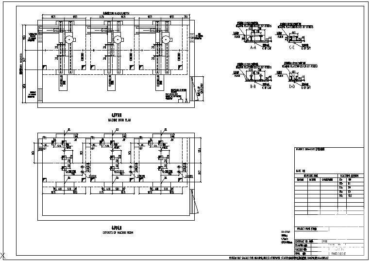
XO-STAR客梯1000-1.75节点构造详图纸cad
- 发布时间:2021-06-05
- 评论次数:0
- 浏览次数:0
- 文件大小:0.08 MB
- 收藏次数:0
-
文件名称:
附件-996056766557986987.rar
客梯节点构造图下载
- XO-STAR客梯1000-2.5节点构造设计图cad
- XO-STAR客梯1000-2.5节点构造图cad
- XO-CLASSY客梯1000-1.0节点构造设计详图cad
- XO-CLASSY客梯1000-1.0节点构造设计详图纸cad
- XO-CLASSY客梯1000-1.5节点构造设计详图纸cad
- XO-CLASSY客梯1000-1.5节点设计构造详图纸cad
- XO-CLASSY客梯1150-1.0节点构造设计详图纸cad
- XO-CLASSY客梯1150-1.5节点构造详图纸cad
- XO-CLASSY客梯1150-1.75节点构造图纸cad
- XO-CLASSY客梯1150-2.0节点构造设计详图纸cad
- XO-CLASSY客梯1150-2.5节点构造设计详图纸cad
- XO-CLASSY客梯1600-1.0节点构造设计详图纸cad
- XO-CLASSY客梯1600-1.0节点构造详图纸cad
- XO-CLASSY客梯1600-1.5节点构造设计详图纸cad
- XO-CLASSY客梯1600-1.5节点构造详图纸cad
- XO-CLASSY客梯1600-1.75节点构造详图纸cad
- XO-CLASSY客梯1600-2.0节点构造设计详图纸cad
- XO-CLASSY客梯1600-2.0节点构造详图纸cad
- XO-CLASSY客梯1600-2.5节点构造设计详图纸cad
- XO-CLASSY客梯1600-2.5节点构造详图纸cad
全部评论
评论网友评论仅友表达个人看法,并不表明本站同意其观点,不得发布违反法律法规的内容!
