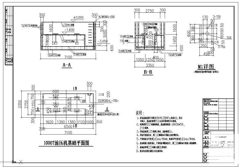
1000T油压机设备基础节点构造详图纸cad
- 发布时间:2021-06-07
- 评论次数:0
- 浏览次数:0
- 文件大小:0.04 MB
- 收藏次数:0
-
文件名称:
附件-996058597608975808.rar
油压机设备基础节点图下载
- 设备基础节点构造详图纸cad布置图
- 设备基础节点构造详图纸cad
- 钢烟囱设备基础节点构造CAD详图纸(dwg)
- 焦炉气设备基础节点构造CAD详图纸.dwg
- 援外工厂设备基础节点构造CAD详图纸.dwg
- 大型设备基础节点构造CAD详图纸.dwg
- 加工中心设备基础节点构造详图纸cad
- 电力设备钢管桩群桩节点CAD详图纸(基础平面图)(dwg)
- 一份设备基础节点构造详细设计CAD图纸
- 一份钢烟囱设备基础节点构造详细设计CAD图纸
- 电力设备钢管桩基础节点构造CAD详图纸(dwg)
- 五面体加工中心设备基础节点构造CAD详图纸
- 630吨压力机设备基础节点构造详图纸cad
- 800吨压力机设备基础节点构造详图纸cad
- FLP-450压力机设备基础节点构造详图纸cad
- 三座标设备基础节点构造详图纸cad
- 设备基础施工方案
- 一份氨罐区设备基础节点构造详细设计CAD图纸(平面布置图)
- 大型机械设备基础施工节点构造CAD详图纸(平面布置图)(dwg)
- 锅炉房混凝土结构施工图纸及设备基础图纸CAD_节点大样图
全部评论
评论网友评论仅友表达个人看法,并不表明本站同意其观点,不得发布违反法律法规的内容!
