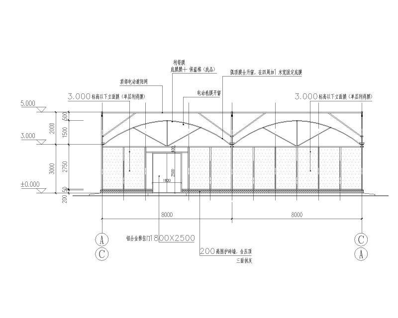
食用菌类培养双连栋大棚初设图cad平面图及剖面图,立面图
- 发布时间:2021-06-08
- 评论次数:0
- 浏览次数:0
- 文件大小:1.45 MB
- 收藏次数:0
-
文件名称:
附件-996589588767670598.dwg
食用菌双连栋大棚设计图下载
- 一份食用菌钢架大棚结构CAD施工方案图纸2018(建筑电气)
- 食用菌生产大棚初设图cad平面布置图及节点详图
- 玻璃智能连栋温室大棚施工CAD图纸
- 连栋大棚温室建筑方案设计图纸_薄膜温室基础平面图_cad
- [平面布置图]玻璃智能连栋温室大棚CAD施工方案图纸
- [平面布局图]连栋薄膜大棚钢结构CAD施工方案图纸
- [CAD]生态园大棚展厅采暖设计图纸(散热器供暖).dwg
- 一份连栋薄膜大棚钢结构CAD施工图纸(电气设计说明)
- 高速公路拌合站大棚、石灰消解大棚施工方案.doc
- 食用菌生产示范园给排水初步设计图cad平面图及系统图
- 双连拱隧道台阶法施工工法.pdf
- 结-食用菌初步设计cad平面布置图及节点详图
- 大棚滴灌标准设计CAD图纸(dwg)
- 冬暖式日光温室大棚工程建筑施工图纸_平面图_大棚剖面图_cad
- [CAD]双连跨24m单层钢结构厂房结构设计图纸(混凝土基础,独立基础)(平面布置图)
- 长沙万科城36~37栋公寓户型设计图纸_cad平面图
- 国内度假村温室大棚消防电气CAD图纸
- 一份温室大棚钢结构部分CAD图纸
- 温室大棚水池管道布置CAD大样图(dwg)
- 农业基地温室大棚建筑施工CAD图纸
全部评论
评论网友评论仅友表达个人看法,并不表明本站同意其观点,不得发布违反法律法规的内容!
