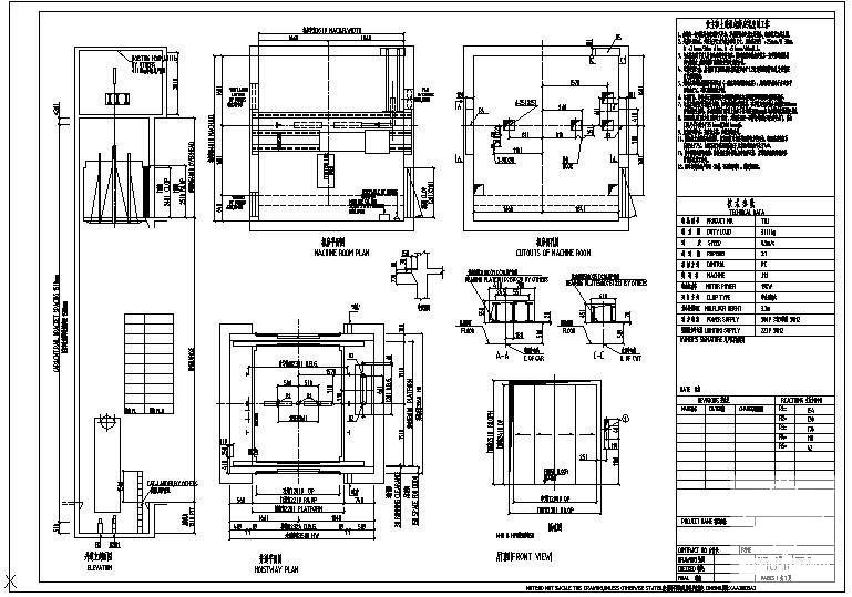
THJ3000六轨双通货梯节点构造详图纸cad
- 发布时间:2021-06-19
- 评论次数:0
- 浏览次数:0
- 文件大小:0.05 MB
- 收藏次数:0
-
文件名称:
附件-996057670988778950.rar
六轨双通货梯节点图下载
- FO3000六轨双通货梯节点构造设计详图纸cad
- FOVF3000六轨双通货梯节点构造设计详图纸cad
- FOVF3000两轨双通货梯节点构造详图纸cad
- THJ3000两轨双通货梯节点构造详图纸cad
- THJ5000双通货梯节点构造详图纸cad
- FO3000双通货梯节点构造详图纸cad
- FO5000双通货梯节点构造详图纸cad
- FO500双通货梯节点构造详图纸cad
- FOVF1000双通货梯节点构造设计详图纸cad
- FOVF2000双通货梯节点构造详图纸cad
- FOVF5000双通货梯节点构造设计详图纸cad
- FOVF500双通货梯节点构造设计详图纸cad
- THJ1000双通货梯节点构造设计详图纸cad
- THJ2000双通货梯节点构造设计详图纸cad
- THJ4000双通货梯节点构造详图纸cad
- THJ500双通货梯节点构造详图纸cad
- FOVF3000六轨货梯节点构造详图纸cad
- THJ3000六轨货梯节点构造详图纸cad
- FOVF3000两轨货梯节点构造设计详图纸cad
- THJ3000两轨货梯节点构造设计详图纸cad
全部评论
评论网友评论仅友表达个人看法,并不表明本站同意其观点,不得发布违反法律法规的内容!
