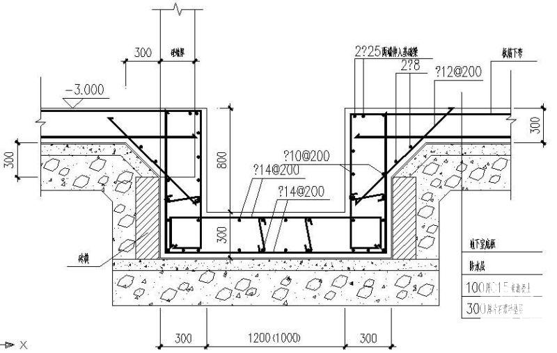
积水坑(吸水坑)节点设计构造详图cad
- 发布时间:2021-06-20
- 评论次数:0
- 浏览次数:0
- 文件大小:0.02 MB
- 收藏次数:0
-
文件名称:
附件-996057687805859869.rar
积水坑设计图下载
- 积水坑(吸水坑)节点构造设计详图cad
- 积水坑(吸水坑)节点构造设计详图纸cad
- [公路土工试验规程]公路工程风积沙路基施工工法
- 黄河泛滥冲洪积平原土方施工方案.docx
- 山间冲洪积盆地光伏发电项目岩土工程详细勘察cad
- 麦积梦谷国际艺术村文旅民宿设计方案
- [电梯井]电梯基坑、吸水坑、集水坑节点构造详细设计CAD图纸
- 山间冲洪积盆地光伏发电项目岩土工程初步勘察,剖面图
- 双积公路高新区至红石崖段某合同段(投标)施工组织设计.doc
- 集水坑节点构造CAD详图纸(挡土墙)(dwg)
- 矩形集水坑结构施工CAD图纸(总共2张)
- 集水坑(带隔油池)大样图纸CAD
- 集水坑节点构造设计详图纸cad
- 集水坑剖面节点构造设计详图纸cad
- 国内住宅项目集水坑模板剖面图纸cad
- 集水坑处安全防护剖面图,cad。
- 一份柱帽及集水坑大样节点构造详细设计CAD图纸
- 一份地下室集水坑剖面节点构造详细设计CAD图纸
- 一份地下室集水井和集水坑详细设计CAD图纸
- 一份水池集水坑配筋详细设计CAD图纸
全部评论
评论网友评论仅友表达个人看法,并不表明本站同意其观点,不得发布违反法律法规的内容!
