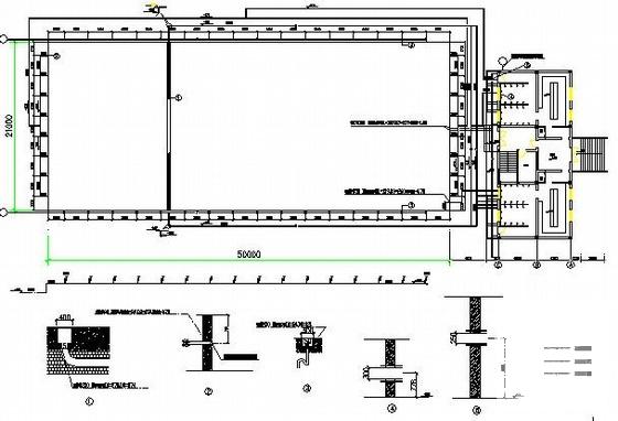
学校泳池平面及管道图纸cad
- 发布时间:2021-06-30
 - 评论次数:0
 
- 浏览次数:0
 - 文件大小:0.13 MB
 
- 收藏次数:0
 - 
								文件名称:
 附件-996009576905977965.rar
							 
								相关下载
							
						- 学校泳池机房管道平面及剖面图纸cad
 - 学校泳池大样及系统图纸cad
 - 泳池管道平面图纸cad
 - 上海学校泳池水处理图纸cad平面图及布置图
 - 学校泳池水处理设计CAD图纸.dwg
 - [CAD]学校游泳池及附属机房给排水设计图纸.dwg
 - 学校泳池项目总图纸cad平面布置图
 - 游泳池泄空管道大样图纸、溢流管道cad
 - 景观区泳池结构及平面CAD图纸(dwg)
 - 中学游泳池平面及系统CAD图纸
 - 游泳池平面及节点CAD图纸
 - 6层体育学校综合楼给排水及游泳池设计
 - 一份学校游泳池及附属机房给排水设计CAD图纸(循环水泵)
 - 一份学校艺体馆(内设游泳池)给排水CAD图纸
 - 一份学校游泳池循环水设备工艺系统CAD图纸
 - 学校游泳池水处理系统工艺流程图纸cad
 - 会所泳池大样图纸及详图纸cad
 - 泳池流程图纸及大样图纸cad
 - 海湾泳池泵房平面CAD图纸(dwg)
 - 小区泳池机房平面总图纸及系统图纸cad布置图
 
全部评论
						
							评论网友评论仅友表达个人看法,并不表明本站同意其观点,不得发布违反法律法规的内容!
						
						