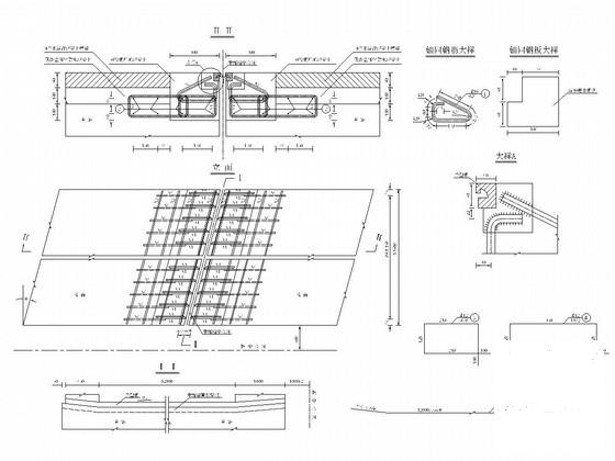
桥宽13.5米桥面伸缩装置构造通用图纸cad
- 发布时间:2021-07-01
- 评论次数:0
- 浏览次数:0
- 文件大小:0.1 MB
- 收藏次数:0
-
文件名称:
附件-996008679878578987.rar
相关下载
- 桥梁公用构造伸缩缝通用设计cad图纸
- [CAD]CQF-60型伸缩装置设计通用图纸(12张).dwg
- [CAD]桥梁工程桥面铺装通用设计图纸(7张多跨径多桥宽).dwg
- 一份分离式立交桥伸缩装置构造CAD详图纸(dwg)
- 伸缩装置安装节点构造CAD详图纸(标准安装)(dwg)
- [CAD]桥梁公用构造伸缩缝通用设计图纸(总共9张).dwg
- 一份高架桥通用构造桥面排水构造节点CAD详图纸设计(dwg)
- 钢筋混凝土桥梁伸缩装置伸缩量计算.xlsx
- [CAD图]GQF—C型伸缩装置安装实例(dwg)
- 桥梁伸缩装置安装技术交底记录.docx
- 市政桥梁伸缩装置安装技术交底.doc
- 桥梁伸缩装置检测试验介绍(ppt)
- 公路桥梁伸缩装置施工要点(ppt)
- [CAD]30米T梁通用图纸(19.75米桥宽).dwg
- 预应力混凝土T梁通用图132套(各种跨径各种桥宽),构造图,布置图
- 桥面伸缩缝施工工艺(PPT,23页)
- 防虫装置节点构造详图纸cad
- GQF-MZL400型桥梁伸缩装置安装示意CAD图纸(钢筋焊接)(dwg)
- Z-80型桥梁伸缩装置安装示意CAD图纸(钢筋焊接)(dwg)
- GQF-MZL320型桥梁伸缩装置安装示意CAD图纸(混凝土浇筑)(dwg)
全部评论
评论网友评论仅友表达个人看法,并不表明本站同意其观点,不得发布违反法律法规的内容!
