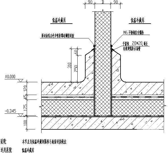
低温冷藏间隔板与地面连接做法节点构造详图纸cad
- 发布时间:2021-07-03
 - 评论次数:0
 
- 浏览次数:0
 - 文件大小:0.02 MB
 
- 收藏次数:0
 - 
								文件名称:
 附件-996056758897707008.rar
							 
								相关下载
							
						- 加工件与低温暂存间等间隔板与地面连接做法节点构造详图纸cad
 - 整容消毒间与加工区间隔板与地面连接做法节点构造详图纸cad
 - 加工件与办公生活间等间隔板与地面连接做法节点构造详图纸cad
 - 加工间间隔板与地面连接做法节点构造详图纸cad
 - 隔板与天棚板间连接做法节点构造设计cad详图纸
 - 隔板与天棚板间连接做法节点构造cad设计详图纸
 - 隔板与天棚板间连接做法节点构造cad详图
 - 办公更衣间与消毒卫生洗手间隔板与地面连接做法节点构造详图纸cad
 - 办公更衣区室外壁板与地面连接做法节点构造详图纸cad
 - 加工车间内部活动隔断与地面连接做法节点构造详图纸cad
 - 加工间外壁板与地面连接做法节点构造详图纸cad
 - 冷间壁板与壁板间连接做法节点构造cad详图纸(一)
 - 冷间壁板与壁板间连接做法节点构造cad设计详图纸(二)
 - 冷间壁板与壁板间连接做法节点构造cad设计详图纸
 - 一份低温冷间门口做法示意节点构造详细设计CAD图纸
 - 低温冷间门口做法示意节点构造详图纸cad
 - 一份T型梁横隔板连接节点构造CAD详图纸(dwg)
 - 砖墙顶部与梁连接做法节点构造设计图纸cad
 - 砖墙顶部与梁连接做法节点构造详图纸cad
 - 楼板层与地面构造分类及做法cad
 
全部评论
						
							评论网友评论仅友表达个人看法,并不表明本站同意其观点,不得发布违反法律法规的内容!
						
						