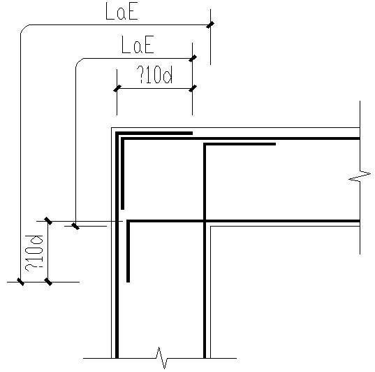
端角部墙水平筋锚固做法节点构造设计详图纸cad
- 发布时间:2021-07-03
- 评论次数:0
- 浏览次数:0
- 文件大小:0.01 MB
- 收藏次数:0
-
文件名称:
附件-996056758596756850.rar
相关下载
- 某墙水平筋做法节点构造详图纸cad
- 墙身水平筋的搭接与锚固节点构造设计详图纸cad
- 墙身水平筋的搭接与锚固节点构造详图纸cad
- 预应力筋端部示意节点构造详图纸cad
- 檐沟端部梁挑头节点构造详图纸cad
- 简支梁端部节点构造详图纸cad
- 端部墙梁转角处连接节点构造CAD详图纸(dwg)
- 端部墙梁转角处连接节点构造CAD详图纸(dwg)
- 端部墙梁转角处连接节点构造CAD详图纸(dwg)
- 剪力墙竖向分布筋锚固搭接节点构造详图纸cad
- 压型钢板屋面通风屋脊端部泛水水边板节点做法详图纸cad
- 二级剪力墙配筋详表节点构造详图纸cad
- 地下连续墙配筋大样节点构造详施工图纸cad
- 墙身水平筋的搭接与锚固构造详图纸cad
- 一份屋面端部檩条隅撑节点构造详细设计CAD图纸
- 墙身水平筋的搭接与锚固节点详图纸cad
- 墙钢丝绳网片加固连接柱节点、墙端部节点、顶端节点构造详图纸cad
- 墙钢丝绳网片加固连接柱节点、墙端部节点、顶端节点构造详图纸cad
- 框架柱纵筋锚固及箍筋加密的节点构造详图纸要求cad
- 梁下部纵筋在框架中节点的弯折锚固节点构造详图纸cad
全部评论
评论网友评论仅友表达个人看法,并不表明本站同意其观点,不得发布违反法律法规的内容!
