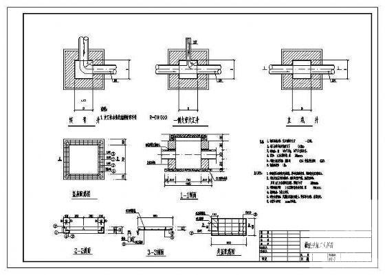
检查井施工大样构造设计详图纸cad
- 发布时间:2021-07-04
- 评论次数:0
- 浏览次数:0
- 文件大小:0.04 MB
- 收藏次数:0
-
文件名称:
附件-996007895857098607.rar
相关下载
- 雨水口篦子CAD详大样图设计(雨水检查井).dwg
- 超深检查井节点构造CAD详大样图(盖板配筋图)(dwg)
- 砌体结构构造大样节点构造详施工图纸cad
- 坡屋面平法构造及补充大样节点构造详施工图纸cad
- [检查井底板]超深检查井节点构造详细设计CAD图纸
- 人防门框墙大样表节点构造详设计图纸cad
- 地下上连续墙与内衬墙大样节点构造CAD详施工图纸
- 梁板补强(加固)大样(贴钢板)节点构造CAD详施工图纸
- 地下上连续墙接头大样节点构造CAD详施工图纸
- 无粘结预应力梁及板大样节点构造详施工图纸cad
- 有粘结预应力梁及板大样节点构造详施工图纸cad
- 柱配筋大样节点构造详施工图纸及平面表示法说明cad
- 楼梯大样及梯板表节点构造详施工图纸cad
- 矩形柱转异形柱转换层大样节点构造详施工图纸cad
- 异形柱大样及柱表节点构造详施工图纸cad
- 地下连续墙配筋大样节点构造详施工图纸cad
- 砌体结构刚性基础大样节点构造详施工图纸cad
- 预应力混凝土管桩说明及大样节点构造详施工图纸
- 重力式砌体挡土墙大样及墙表节点构造详施工图纸cad
- 50个天窗节点构造CAD详大样图——建筑CAD详大样图(dwg)
全部评论
评论网友评论仅友表达个人看法,并不表明本站同意其观点,不得发布违反法律法规的内容!
