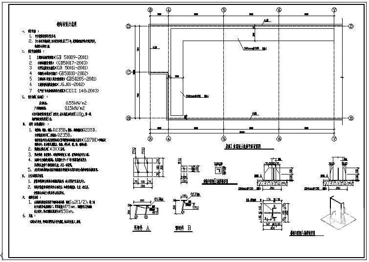
钢结构屋面广告牌结构节点构造详图纸cad平面布置图及立面图
- 发布时间:2021-07-06
- 评论次数:0
- 浏览次数:0
- 文件大小:0.11 MB
- 收藏次数:0
-
文件名称:
附件-996056755865505875.rar
广告牌构造节点图下载
- 广告牌排架节点构造CAD详图纸(dwg)
- 广告牌设计节点构造设计详图纸cad
- 钢结构广告牌节点构造详图纸cad
- 钢结构广告牌节点构造详图纸cad立面图
- 遮阳广告牌节点构造详图纸cad平面图
- 广告牌节点构造详图纸cad立面图
- 单面广告牌结构节点构造CAD详施工图纸(dwg)
- 广告牌的结构设计节点构造CAD详图纸(dwg)
- 广告牌钢管柱脚节点构造CAD详图纸(dwg)
- 广告牌结构设计节点构造CAD详图纸.dwg
- 广告牌的结构设计节点构造CAD详图纸.dwg
- 玻璃幕墙广告牌建筑及结构施工节点构造CAD详图纸.dwg
- 玻璃幕墙广告牌建筑及结构施工节点构造详图纸cad
- 广告牌结构设计节点构造详图纸cad
- 广告牌预制方桩节点构造详图纸cad
- 楼顶单面广告牌构造CAD详图纸
- 一份单面广告牌结构节点构造详细设计CAD施工图纸
- 广告牌施工dwg格式CAD图纸(节点详图纸)(平立剖面图)
- 屋面防水施工节点cad图纸_防水构造节点图
- 25米*8米广告牌结构cad图和设计说明,立面图及节点详图
全部评论
评论网友评论仅友表达个人看法,并不表明本站同意其观点,不得发布违反法律法规的内容!
