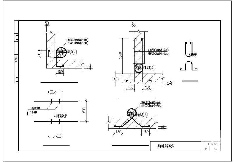
08G08砖墙与木柱拉接大样节点构造详图纸cad
- 发布时间:2021-07-28
- 评论次数:0
- 浏览次数:0
- 文件大小:0.02 MB
- 收藏次数:0
- 
								文件名称: 附件-996055065885797979.rar 附件-996055065885797979.rar
								相关下载
							
						- 08G08空心板屋盖墙体拉接节点构造详图纸cad
- 08G08康房、木柱木梁典型立面节点构造详图纸cad
- 08G08木柱木屋架典型立面节点构造详图纸cad
- [川]08G08砖墙石基础断面节点构造详细设计CAD图纸
- 08G08砖墙混凝土、毛石混凝土基础断面节点构造CAD详图纸(一)
- 08G08砖墙混凝土、毛石混凝土基础断面节点构造详图纸cad
- [川]08G08木柱基础(6-7度区)节点构造详细设计CAD图纸
- [川]08G08木柱基础(8-9度区)节点构造详细设计CAD图纸
- 08G08木柱木梁、康房典型平面及竖向支撑节点构造详图纸cad
- 08G08木柱木屋架典型屋盖平面及支撑节点构造详图纸cad
- 预制桩与承台锚拉及接桩节点构造CAD详图纸(dwg)
- 外用电梯与梁拉接示意节点构造详图纸cad
- 斜接与L接节点构造详图纸(7)
- 08G08生土墙拉结做法节点构造详图纸cad
- 砖墙与角钢柱连接构造节点CAD详图纸
- 轻钢结构拉条节点构造CAD详大样图(吊装方案)(dwg)
- 斜接与L接节点设计构造cad详图
- 地下上连续墙与内衬墙大样节点构造CAD详施工图纸
- 砌体结构构造之构造柱与砖墙连接节点构造CAD详图纸(一)
- 砌体结构构造之构造柱与砖墙连接节点构造详图纸(二)_CAD
全部评论
						
							评论网友评论仅友表达个人看法,并不表明本站同意其观点,不得发布违反法律法规的内容!
						
						
