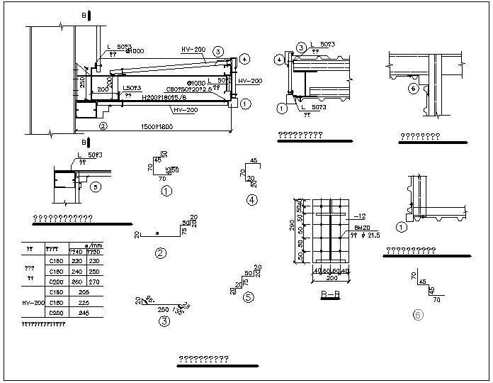
钢结构雨篷节点构造cad详图纸
- 发布时间:2021-07-29
- 评论次数:0
- 浏览次数:0
- 文件大小:0.04 MB
- 收藏次数:0
- 
								文件名称: 附件-996055069997790588.rar 附件-996055069997790588.rar
								相关下载
							
						- 钢结构雨篷节点构造CAD详图纸(dwg)
- 雨篷钢结构节点构造CAD详图纸(dwg)
- 钢结构雨篷节点构造详图纸cad
- 钢结构雨篷节点构造详图纸cad
- 钢结构雨篷节点构造详图纸cad
- 雨篷节点构造详图纸cad
- 钢结构厂房雨篷构造CAD详图纸(dwg)
- 钢结构雨篷铝单板幕墙节点图纸(CAD)
- 点式雨篷节点构造详细设计CAD图纸
- 网架结构雨篷节点构造详细设计CAD图纸
- 雨篷及过梁节点构造CAD详图纸(dwg)
- 屋顶及雨篷节点构造CAD详图纸
- 单元入口雨篷平面节点构造详图纸cad
- 雨篷配筋节点构造详图纸cad
- 雨篷节点构造详图纸cad(二)
- 雨篷节点构造详图纸cad(三)
- 雨篷节点构造详图纸cad(四)
- 设备车间雨篷节点构造详图纸cad
- 雨篷节点构造详图纸cad平面图
- 玻璃雨篷节点构造详图纸cad
全部评论
						
							评论网友评论仅友表达个人看法,并不表明本站同意其观点,不得发布违反法律法规的内容!
						
						
