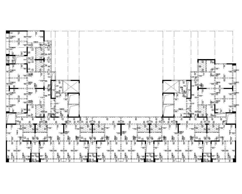
26层剪力墙大数据园区综合体11#结施cad布置图
- 发布时间:2021-08-06
- 评论次数:0
- 浏览次数:0
- 文件大小:3.36 MB
- 收藏次数:0
-
文件名称:
附件-996585567657599878.dwg
相关下载
- 24层剪力墙大数据园区综合体10#结施cad布置图
- 24层剪力墙大数据园区综合体9#结施cad布置图
- 23层剪力墙结构大数据园区综合体结施cad布置图
- 多层剪力墙结构大数据园区综合体结施cad布置图
- 多层剪力墙结构大数据园区综合体结施cad布置图
- 钢筋砼高层剪力墙大数据园区综合楼结施2020cad布置图
- 24层剪力墙大数据园区综合体12#结施cad大样图及布置图
- 高层剪力墙大数据园区综合体结施2020cad大样图及布置图
- 26层大数据园区综合体二标11#楼电施cad平面图及系统图
- 剪力墙住宅结施CAD图纸(dwg)
- 大数据园区综合体结构施工图2020cad平面布置图
- 16层大数据园区综合体暖通施工图纸cad平面图
- 26层大数据园区综合体暖通施工图纸cad平面图
- 大数据园区综合体给排水施工图纸cad平面图
- 大数据园区综合体给排水施工图纸cad平面图
- 大数据园区综合体给排水施工图纸cad平面图
- 大数据园区综合体给排水施工图纸cad平面图
- 十五层框支剪力墙住宅及商业裙房结施,平面布置图
- 2栋框支剪力墙结构商业住宅结施2020cad平面布置图
- 7层坡屋面剪力墙结构住宅结施图2020cad平面布置图
全部评论
评论网友评论仅友表达个人看法,并不表明本站同意其观点,不得发布违反法律法规的内容!
