豆豆网

 找回密码
 立即注册

QQ登录

只需一步,快速开始

查看: 1681|回复: 0

高校5层五栋学院楼电气设计CAD施工图纸

[复制链接]

0

主题

0

帖子

960

积分

超级版主

Rank: 8Rank: 8

积分
960
发表于 2020-2-17 13:29:29 | 显示全部楼层 |阅读模式

该帖子包含附件可供参考学习和下载,您可以 搜索 更多您想要的资源


  • 建筑类别:教育
  • 建筑高度类型:多层建筑
  • 建筑地上层数:5层
  • 图纸设计深度:施工图
  • 参考图纸:48张
  • 设计年代:近代
  • 负荷等级:三级
  • 防雷等级:第二类
  • 接地方式:TN-S
  • 项目所在地:重庆
  • 强电设计: 供配电系统 ,配变电所,低压配电,电气照明,建筑物防雷,接地安全
  • 弱电设计:通信系统,有线电视和卫星接收系统,信息网络系统

附件详情

  • 1、电气设计说明
  • 2、高低压配电系统图
  • 3、配电房布置图
  • 4、 配电箱系统
  • 5、强电平面图
  • 6、 弱电平面图
  • 7、防雷接地平面图

附件详情

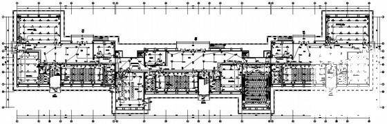
该附件是[重庆]某高校五栋学院楼全套电气施工图纸,总共48张。
该项目包含五栋大楼哦,规划占地面积为21689.34平方米,建设占地面积为21689.34平方米,总建筑面积为18216.83平方米,1#学院楼建筑面积为:4502.69平方米,2#学院楼建筑面积为:4502.69平方米,3#、4#、5#院楼建筑面积为:9211.44平方米。
电气设计包含高低压变配电系统设计、配电室设计、配电箱系统设计、照明灯具布置、插座动力系统设计、电视电话、网络系统设计、防雷接地系统设计等。

第 1 张图
第 1 张图
第 2 张图
第 2 张图
第 3 张图
第 3 张图
第 4 张图
第 4 张图
以上是部分图纸截图,有些图框没有放大后再截图,可能截图里不清晰或者看不到内容,您可以在下载后查看具体内容

温馨提示:该资料由网友于2020-2-17 13:29:29上传分享,您可以下载该资料进行学习和参考,如有侵权内容或者违法行为,请及时联系站长删除,如有疑问,您可以在电气工程专区发帖交流相关知识。

附件2099v11edeccs01ccs0ec1cf0d.zip

7.55 MB

下载  售价: 100 积分    赚积分

相关帖子

回复

使用道具 举报

您需要登录后才可以回帖 登录 | 立即注册

本版积分规则

QQ|联系我们|豆豆网 ( 苏ICP备20004746号-1 )

GMT+8, 2025-11-3 08:52 , Processed in 0.015114 second(s), 27 queries .

本站所有内容均由网友自主分享,如有侵权内容或者违法行为,请及时联系站长删除,本站将根据实际情况进行积分奖励!请查看:免责声明

快速回复 返回顶部 返回列表