豆豆网

 找回密码
 立即注册

QQ登录

只需一步,快速开始

查看: 1613|回复: 0

一份10层中西医住院综合楼电气CAD施工图纸(安装大样)

[复制链接]

0

主题

0

帖子

1470

积分

超级版主

Rank: 8Rank: 8

积分
1470
发表于 2020-2-17 13:29:29 | 显示全部楼层 |阅读模式

该帖子包含附件可供参考学习和下载,您可以 搜索 更多您想要的资源


  • 建筑类别:医疗
  • 建筑高度类型:高层建筑
  • 建筑设计结构形式:钢筋混凝土结构
  • 建筑设计面积:12944.3平方米
  • 建筑地上层数:10层
  • 建筑地下层数:2层
  • 图纸设计深度:施工图
  • 参考图纸:52张
  • 设计年代:近代
  • 地下室用途:车库,其它
  • 节点大样:等电位联结,其它
  • 负荷等级:二级
  • 防雷等级:第二类
  • 火灾保护分级:一级
  • 接地方式:TN-S
  • 项目所在地:四川
  • 强电设计: 供配电系统 ,配变电所,应急电源,低压配电,电气照明,接地安全,继电保护,其它
  • 弱电设计: 火灾自动报警系统 ,视频监控系统,综合布线系统,通信系统,有线电视和卫星接收系统,信息网络系统,呼应信号及信息显示,其它

附件详情

  • 1、电气设计说明
  • 2、低压配电竖向干线系统图
  • 3、电气火灾监控系统干线系统图
  • 4、配电箱系统图
  • 5、电视系统图
  • 6、电话及网络系统图
  • 7、视频监控系统框图
  • 8、病房呼叫系统系统图
  • 9、火灾自动报警及消防联动系统图
  • 10、变低压配电系统图
  • 11、柴油发电机低压柜配电系统图
  • 12、变配电室设备布置平面图
  • 13、配电平面图
  • 14、机房电气平面图
  • 15、消防平面图
  • 16、电气桥架安装示意图
  • 17、总等电位联结详图
  • 18、接地示意图
  • 19、电气竖井内接地布置图
  • 20、配电平面图
  • 21、电气平面图
  • 22、 照明平面图

附件详情

该附件是[四川]中西医住院综合楼全套电气施工图纸(安装大样),总共52张。
项目为住院综合楼,该项目地上十层,地下二层,建筑面积12944.3m,建筑高度40.20m,地下停车位74辆,车库防火分类为三类,为一类高层住院楼,建筑耐火等级为一级,建筑设计结构形式框架结构。
设计范围:1.220/380V电力配电系统;2.照明系统;3建筑物防雷保护、接地及电气安全系统;4.有线电视系统;5.电话系统;6.计算机网络系统;7.视频监控系统;8.病房呼叫系统;9.火灾自动报警及消防联动系统。


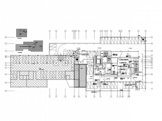
负一层电气平面图

变低压与柴油发电机系统图

电气桥架安装示意图

电话及网络系统图

低压配电竖向干线系统图

第 1 张图
第 1 张图
第 2 张图
第 2 张图
第 3 张图
第 3 张图
第 4 张图
第 4 张图
第 5 张图
第 5 张图
第 6 张图
第 6 张图
以上是部分图纸截图,有些图框没有放大后再截图,可能截图里不清晰或者看不到内容,您可以在下载后查看具体内容

温馨提示:该资料由网友于2020-2-17 13:29:29上传分享,您可以下载该资料进行学习和参考,如有侵权内容或者违法行为,请及时联系站长删除,如有疑问,您可以在电气工程专区发帖交流相关知识。

附件2099v11edecesf0d0cwc0s0d20.rar

5.37 MB

下载  售价: 100 积分    赚积分

相关帖子

回复

使用道具 举报

您需要登录后才可以回帖 登录 | 立即注册

本版积分规则

QQ|联系我们|豆豆网 ( 苏ICP备20004746号-1 )

GMT+8, 2025-12-19 22:15 , Processed in 0.018977 second(s), 27 queries .

本站所有内容均由网友自主分享,如有侵权内容或者违法行为,请及时联系站长删除,本站将根据实际情况进行积分奖励!请查看:免责声明

快速回复 返回顶部 返回列表