| 
 该帖子包含附件可供参考学习和下载,您可以 搜索 更多您想要的资源   
 
  - 
   建筑类别:住宅,商业
  
 
  - 
   建筑高度类型:高层建筑
  
 
  - 
   建筑设计结构形式:钢筋混凝土结构
  
 
  - 
   建筑设计面积:31544.62平方米
  
 
  - 
   建筑地上层数:30层
  
 
  - 
   建筑地下层数:2层
  
 
  - 
   图纸设计深度:施工图
  
 
  - 
   参考图纸:28张
  
 
  - 
   设计年代:近代
  
 
  - 
   地下室用途:车库,设备用房
  
 
  - 
   负荷等级:二级
  
 
  - 
   防雷等级:第三类
  
 
  - 
   接地方式:TN-S
  
 
  - 
   项目所在地:四川
  
 
  - 
   强电设计:供配电系统,配变电所,应急电源,低压配电,电气照明,建筑物防雷,接地安全,电气控制,其它
  
 
  - 
   弱电设计:
   
    火灾自动报警系统
   
   ,视频监控系统,综合布线系统,通信系统,有线电视和卫星接收系统,信息网络系统,呼应信号及信息显示,其它
  
 
  
 
  
   附件详情
   
  
   - 
    1、电气设计说明
   
 
   - 
    2、变电所高压系统图
   
 
   - 
    3、变电所低压配电系统图
   
 
   - 
    4、竖向配电系统图
   
 
   - 
    5、配电箱系统图
   
 
   - 
    6、有线电视系统图
   
 
   - 
    7、电话系统图
   
 
   - 
    8、网络系统图
   
 
   - 
    9、可视对讲系统图
   
 
   - 
    10、闭路电视监控系统图
   
 
   - 
    11、变电所平面布置图
   
 
   - 
    12、照明平面图
   
 
   - 
    13、配电平面图
   
 
   - 
    14、
    
     弱电平面图
    
   
 
   - 
    15、消防报警平面图
   
 
   - 
    16、插座平面图
   
 
   - 
    17、基础接地平面图
   
 
   - 
    18、屋顶
    
     防雷平面图
    
   
 
   
  
 
  
   附件详情
   
  
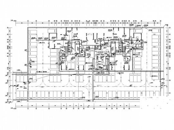
   该附件是[四川]一类高层综合商住楼强弱电系统电气施工图纸,总共28张。
    
   项目建筑面积共31544.62平方米,属于一类高层居住建筑,地上共三十层:地上一、二层为商铺,三到三十层为住宅。地下一层为I类机动停车库和一个自行车库。该项目的变配电房、发电机房和弱电机房均设置在地下一层;开闭所、安防中心和消防水泵房与I-I期工程合用;空调形式为分体机;热源为管道式天然气。
    
   资料设计内容包括:变配电系统、电力照明系统、动力设备配电及控制系统、建筑防雷及接地系统、火灾自动报警系统的设计,另做电话通信系统、电缆电视系统、宽带数据网络系统、和住宅可视对讲的土建配合设计。
    
    
   
  
   
  
   
    地下车库电力平面图
    
   
    变电所低压配电系统图
    
   
    弱电系统图
    
   
    竖向配电系统图
    
   
    变配电房预埋件平面图
    
   
    户型插座平面图
    
   
    三-三十层强、弱电桥架平面图9
    
   
    基础接地平面图
    
   
    变电系统图接线图
    
   
  
 
第 1 张图   
第 2 张图   
第 3 张图   
第 4 张图   
第 5 张图   
第 6 张图   以上是部分图纸截图,有些图框没有放大后再截图,可能截图里不清晰或者看不到内容,您可以在下载后查看具体内容 
 
 温馨提示:该资料由网友于2020-2-17 13:53:41上传分享,您可以下载该资料进行学习和参考,如有侵权内容或者违法行为,请及时联系站长删除,如有疑问,您可以在商业建筑专区发帖交流相关知识。
 
	
 |