豆豆网

 找回密码
 立即注册

QQ登录

只需一步,快速开始

查看: 2714|回复: 0

外国语学校地下室电气设计CAD施工图纸

[复制链接]

0

主题

0

帖子

1359

积分

超级版主

Rank: 8Rank: 8

积分
1359
发表于 2020-2-17 15:11:41 | 显示全部楼层 |阅读模式

该帖子包含附件可供参考学习和下载,您可以 搜索 更多您想要的资源


  • 建筑类别:教育
  • 建筑高度类型:多层建筑
  • 建筑设计结构形式:钢筋混凝土结构
  • 图纸设计深度:施工图
  • 参考图纸:8张
  • 地下室用途:人防
  • 节点大样:人防
  • 防雷等级:第三类
  • 接地方式:TN-S
  • 项目所在地:浙江
  • 强电 设计: 供配电系统 ,其它

附件详情

  • 配电系统图七
  • 配电系统图八
  • 厨房电气平面图
  • 厨房设备配电系统图一
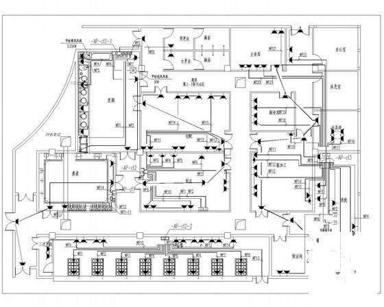
  • 地下室一区动力平面图
  • 地下室二区动力平面图
  • 地下室三区动力平面图

附件详情

该项目位于浙江省,项目为外国语学校一期、二期工程地下室。,图纸共8张。值得参考。

厨房设备配电系统图一

地下室一区动力平面图

配电系统图七

学校地下室 - 1
第 1 张图
学校地下室 - 2
第 2 张图
学校地下室 - 3
第 3 张图
学校地下室 - 4
第 4 张图
以上是部分图纸截图,有些图框没有放大后再截图,可能截图里不清晰或者看不到内容,您可以在下载后查看具体内容

温馨提示:该资料由网友于2020-2-17 15:11:41上传分享,您可以下载该资料进行学习和参考,如有侵权内容或者违法行为,请及时联系站长删除,如有疑问,您可以在电气工程专区发帖交流相关知识。

附件2099v11edeewccdccsfdfd2cfe.rar

1.26 MB

下载  售价: 100 积分    赚积分

学校地下室相关帖子

回复

使用道具 举报

您需要登录后才可以回帖 登录 | 立即注册

本版积分规则

QQ|联系我们|豆豆网 ( 苏ICP备20004746号-1 )

GMT+8, 2025-12-28 04:22 , Processed in 0.016673 second(s), 28 queries .

本站所有内容均由网友自主分享,如有侵权内容或者违法行为,请及时联系站长删除,本站将根据实际情况进行积分奖励!请查看:免责声明

快速回复 返回顶部 返回列表