豆豆网

 找回密码
 立即注册

QQ登录

只需一步,快速开始

查看: 3346|回复: 0

一份4层商业办公建筑强弱电电气CAD施工图纸

[复制链接]

0

主题

0

帖子

1390

积分

超级版主

Rank: 8Rank: 8

积分
1390
发表于 2020-2-17 21:15:57 | 显示全部楼层 |阅读模式

该帖子包含附件可供参考学习和下载,您可以 搜索 更多您想要的资源


  • 建筑类别:办公,商业
  • 建筑高度类型:多层建筑
  • 建筑设计面积:9530平方米
  • 建筑地上层数:4层
  • 图纸设计深度:施工图
  • 参考图纸:78张
  • 设计年代:近代
  • 负荷等级:三级
  • 防雷等级:第三类
  • 接地方式:TN-C-S
  • 项目所在地:安徽
  • 强电设计:供配电系统,低压配电,电气照明,建筑物防雷,接地安全
  • 弱电设计: 火灾自动报警系统

附件详情

  • 1、设计说明;
  • 2、配电系统图;
  • 3、配电平面图;
  • 4、照明平面图;
  • 5、 弱电平面图
  • 6、消防平面图;
  • 7、基础接地平面图;
  • 8、 防雷平面图

附件详情

该附件为[安徽]多层商业办公建筑全套强弱电电气施工图,共78张。
项目概况:本项目包含四栋建筑,1.该项目为商业与物业办公部分,地上最高4层,总面积约1090平米。
2.该项目为广场商业与物业办公部分,地上最高4层,总面积约3675平米。3.该项目为广场商业与物业办公部分,地上最高4层,总面积约1090平米。4.该项目为广场商业与物业办公部分,地上最高4层,总面积约3675平米。
设计内容:1. 照明配电系统;2. 防雷及接地系统;3. 电话、宽带网系统;4. 消防报警系统。

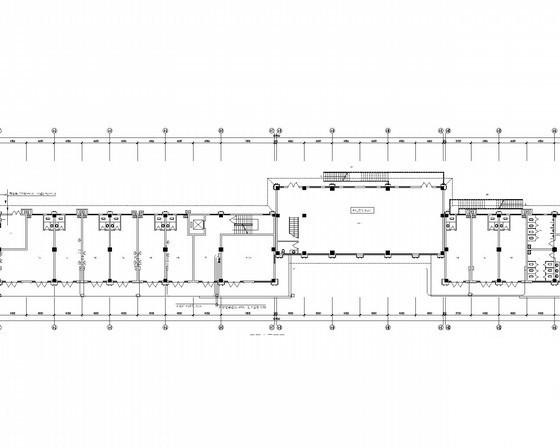
配电系统图

弱电平面图

消防平面图

商业办公建筑 - 1
第 1 张图
商业办公建筑 - 2
第 2 张图
商业办公建筑 - 3
第 3 张图
商业办公建筑 - 4
第 4 张图
以上是部分图纸截图,有些图框没有放大后再截图,可能截图里不清晰或者看不到内容,您可以在下载后查看具体内容

温馨提示:该资料由网友于2020-2-17 21:15:57上传分享,您可以下载该资料进行学习和参考,如有侵权内容或者违法行为,请及时联系站长删除,如有疑问,您可以在商业建筑专区发帖交流相关知识。

附件2099v11edecsc2c2fssdccfsss.zip

8.95 MB

下载  售价: 100 积分    赚积分

商业办公建筑相关帖子

回复

使用道具 举报

您需要登录后才可以回帖 登录 | 立即注册

本版积分规则

QQ|联系我们|豆豆网 ( 苏ICP备20004746号-1 )

GMT+8, 2025-12-27 05:48 , Processed in 0.015513 second(s), 27 queries .

本站所有内容均由网友自主分享,如有侵权内容或者违法行为,请及时联系站长删除,本站将根据实际情况进行积分奖励!请查看:免责声明

快速回复 返回顶部 返回列表