豆豆网

 找回密码
 立即注册

QQ登录

只需一步,快速开始

查看: 646|回复: 0

一份单层桩基础框架结构厂房结构设计CAD施工图纸(8度抗震)

[复制链接]

0

主题

0

帖子

1488

积分

超级版主

Rank: 8Rank: 8

积分
1488
发表于 2020-2-17 22:58:28 | 显示全部楼层 |阅读模式

该帖子包含附件可供参考学习和下载,您可以 搜索 更多您想要的资源


  • 建筑类别:工业建筑
  • 建筑高度:单层建筑
  • 设计阶段:施工图设计
  • 民用建筑设计使用年限:50年
  • 建筑设计结构形式:框架结构
  • 基础形式:桩基础
  • 地基基础设计等级:丙级
  • 抗震设防烈度:8度抗震
  • 风压:0.55kN/平方米
  • 人防或地下车库:无
  • 参考图纸:20张以下
  • 设计年代:近代

附件详情

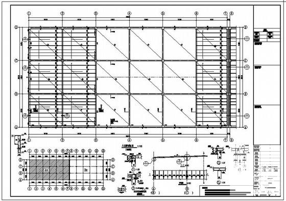
某单层框架厂房结构设计图
该资料为:某单层框架厂房结构设计图
该资料包含:
结构设计总说明、基础设计说明及承台大样图、桩位 平面布置图 、承台平面施工图、柱平法施工图、过梁平法施工图、屋面 结构施工图 共12张图纸。


第 1 张图
第 1 张图
第 2 张图
第 2 张图
第 3 张图
第 3 张图
第 4 张图
第 4 张图
以上是部分图纸截图,有些图框没有放大后再截图,可能截图里不清晰或者看不到内容,您可以在下载后查看具体内容

温馨提示:该资料由网友于2020-2-17 22:58:28上传分享,您可以下载该资料进行学习和参考,如有侵权内容或者违法行为,请及时联系站长删除,如有疑问,您可以在建筑施工专区发帖交流相关知识。

附件2099v11edfc11csfs10c2d2f2c.rar

760.15 KB

下载  售价: 100 积分    赚积分

相关帖子

回复

使用道具 举报

您需要登录后才可以回帖 登录 | 立即注册

本版积分规则

QQ|联系我们|豆豆网 ( 苏ICP备20004746号-1 )

GMT+8, 2025-12-28 04:23 , Processed in 0.018352 second(s), 28 queries .

本站所有内容均由网友自主分享,如有侵权内容或者违法行为,请及时联系站长删除,本站将根据实际情况进行积分奖励!请查看:免责声明

快速回复 返回顶部 返回列表