豆豆网

 找回密码
 立即注册

QQ登录

只需一步,快速开始

查看: 2041|回复: 0

地上6层地下1层住宅楼地热采暖施工图纸和采暖管井管道连接大样图

[复制链接]

0

主题

0

帖子

1597

积分

超级版主

Rank: 8Rank: 8

积分
1597
发表于 2020-10-15 20:20:14 | 显示全部楼层 |阅读模式

该帖子包含附件可供参考学习和下载,您可以 搜索 更多您想要的资源


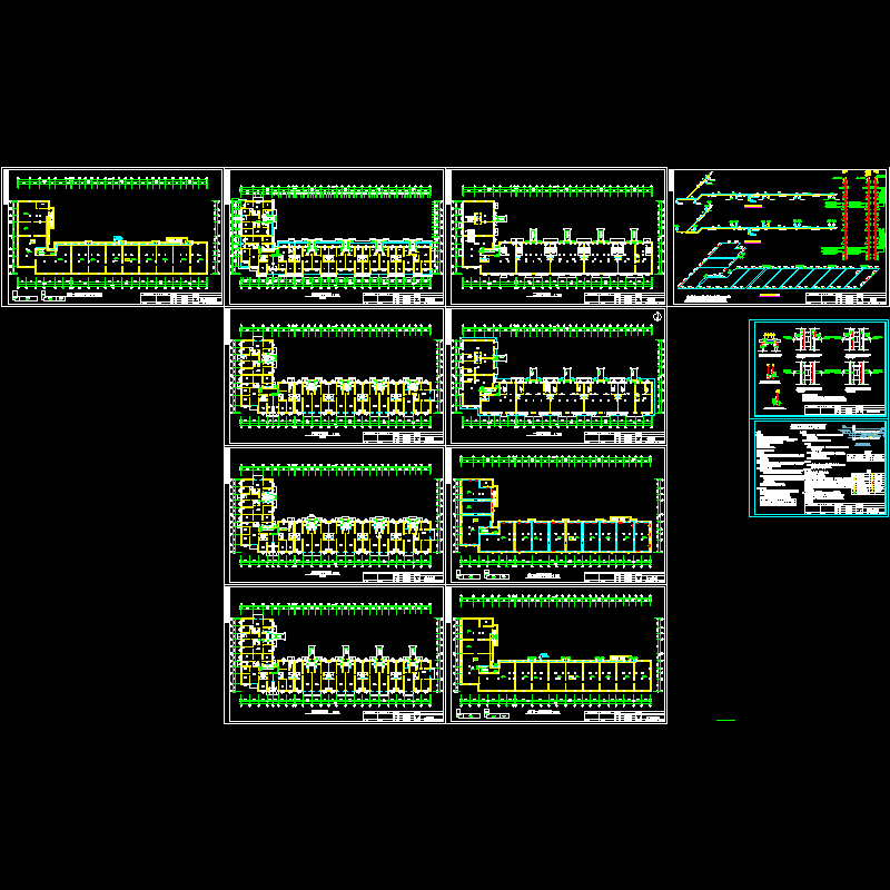
附件详情 该项目为六层住宅地暖施工图,热源由小区换热站供应,连续供热。系统供水温度为60°C回水温度为50°C,采暖系统形式为交联聚乙烯低温热水地板辐射采暖系统,主立管双管下分式。   该资料包含采暖工程施工设计说明,采暖管井管道连接大样图,采暖系统图,地下一层采暖干管平面图及采暖平面图,各层采暖平面图。
住宅楼地热采暖 - 1
第 1 张图
以上是部分图纸截图,有些图框没有放大后再截图,可能截图里不清晰或者看不到内容,您可以在下载后查看具体内容

附件2099v11ecw12ecc2d22cefd.rar

1.46 MB

下载  售价: 100 积分    赚积分

住宅楼地热采暖相关帖子

回复

使用道具 举报

您需要登录后才可以回帖 登录 | 立即注册

本版积分规则

QQ|联系我们|豆豆网 ( 苏ICP备20004746号-1 )

GMT+8, 2025-12-28 04:23 , Processed in 0.014028 second(s), 28 queries .

本站所有内容均由网友自主分享,如有侵权内容或者违法行为,请及时联系站长删除,本站将根据实际情况进行积分奖励!请查看:免责声明

快速回复 返回顶部 返回列表