豆豆网

 找回密码
 立即注册

QQ登录

只需一步,快速开始

查看: 2641|回复: 0

一份县级市5层医院电气CAD施工图纸

[复制链接]

0

主题

0

帖子

1487

积分

超级版主

Rank: 8Rank: 8

积分
1487
发表于 2020-2-18 10:14:13 | 显示全部楼层 |阅读模式

该帖子包含附件可供参考学习和下载,您可以 搜索 更多您想要的资源


  • 建筑类别:医疗
  • 建筑高度类型:多层建筑
  • 建筑地上层数:5层
  • 图纸设计深度:施工图
  • 负荷等级:三级
  • 防雷等级:第三类
  • 接地方式:TN-C-S
  • 强电设计:低压配电,电气照明,建筑物防雷,接地安全
  • 弱电设计: 火灾自动报警系统

附件详情

  • 1、电气设计说明
  • 2、低压配电柜系统图
  • 3、 配电箱系统
  • 4、消防平面图
  • 5、 照明平面图
  • 6、消防平面图
  • 7、防雷接地平面图
  • 8、配电干线平面图

附件详情

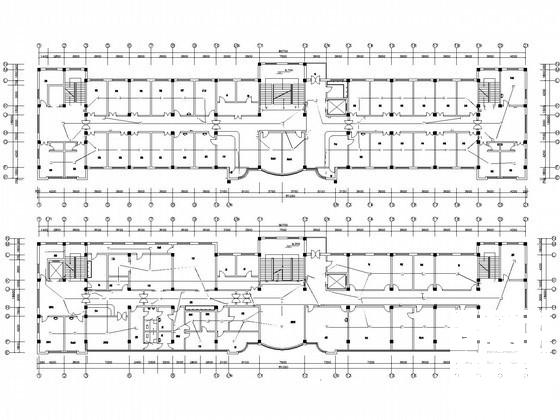
该附件是某县级市医院电气全套施工图纸,总共17张。
该项目为综合医院门急诊楼,地上五层,框架结构,现浇混凝土楼板。根据工程的规模、功能及使用要求,负荷等级确定为一级(手术室,急诊部,细菌及生化室,消防泵房,电梯用电),其余部分为三级负荷。

低压配电干线图

四层消防平面图

低压配电柜系统图

第 1 张图
第 1 张图
第 2 张图
第 2 张图
第 3 张图
第 3 张图
第 4 张图
第 4 张图
以上是部分图纸截图,有些图框没有放大后再截图,可能截图里不清晰或者看不到内容,您可以在下载后查看具体内容

温馨提示:该资料由网友于2020-2-18 10:14:13上传分享,您可以下载该资料进行学习和参考,如有侵权内容或者违法行为,请及时联系站长删除,如有疑问,您可以在电气工程专区发帖交流相关知识。

附件2099v11edecddcdfs2s21cccfc.rar

2.48 MB

下载  售价: 100 积分    赚积分

相关帖子

回复

使用道具 举报

您需要登录后才可以回帖 登录 | 立即注册

本版积分规则

QQ|联系我们|豆豆网 ( 苏ICP备20004746号-1 )

GMT+8, 2025-12-26 01:00 , Processed in 0.015939 second(s), 27 queries .

本站所有内容均由网友自主分享,如有侵权内容或者违法行为,请及时联系站长删除,本站将根据实际情况进行积分奖励!请查看:免责声明

快速回复 返回顶部 返回列表