豆豆网

 找回密码
 立即注册

QQ登录

只需一步,快速开始

查看: 1514|回复: 0

厂区门卫室电气CAD施工图纸(配电箱系统图).dwg

[复制链接]

0

主题

0

帖子

1358

积分

超级版主

Rank: 8Rank: 8

积分
1358
发表于 2020-11-4 20:05:54 | 显示全部楼层 |阅读模式

该帖子包含附件可供参考学习和下载,您可以 搜索 更多您想要的资源


  • 建筑类别:工业建筑
  • 建筑高度:单层建筑
  • 建筑结构形式:混合结构
  • 建筑面积:34.08平方米
  • 地上层数:1层
  • 图纸设计深度:施工图
  • 参考图纸:3张
  • 负荷等级:三级
  • 火灾保护分级:二级
  • 强电 设计:低压配电,电气照明,接地安全
  • 弱电设计:通信系统,有线电视和卫星接收系统,信息网络系统

附件详情

  • 一、 电气设计 说明
  • 二、 配电箱系统
  • 三、照明电气平面图
  • 四、弱电及接地平面图

附件详情

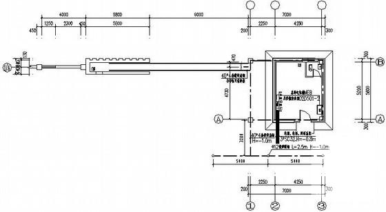
本稿件是某厂区门卫室电气施工图纸,工程建筑面积34.08m2;层数为一层;其耐火等级为二级;建筑高度:4.05m;建筑建筑结构形式为砖混结构;基础为独立基础。
电气设计包含配电系统设计、照明灯具布置、插座动力系统设计、电话网络系统设计、有线电视系统设计、接地系统设计。

门卫室施工图 - 1
第 1 张图
门卫室施工图 - 2
第 2 张图
门卫室施工图 - 3
第 3 张图
以上是部分图纸截图,有些图框没有放大后再截图,可能截图里不清晰或者看不到内容,您可以在下载后查看具体内容

附件2099v11ec2cscedeew01dcf.rar

261.15 KB

下载  售价: 100 积分    赚积分

门卫室施工图相关帖子

回复

使用道具 举报

您需要登录后才可以回帖 登录 | 立即注册

本版积分规则

QQ|联系我们|豆豆网 ( 苏ICP备20004746号-1 )

GMT+8, 2025-12-15 07:55 , Processed in 0.021274 second(s), 27 queries .

本站所有内容均由网友自主分享,如有侵权内容或者违法行为,请及时联系站长删除,本站将根据实际情况进行积分奖励!请查看:免责声明

快速回复 返回顶部 返回列表