豆豆网

 找回密码
 立即注册

QQ登录

只需一步,快速开始

查看: 3035|回复: 0

[CAD]6层商住楼电气设计图纸(二级负荷)(火灾自动报警系统)

[复制链接]

0

主题

0

帖子

1488

积分

超级版主

Rank: 8Rank: 8

积分
1488
发表于 2020-2-18 11:29:26 | 显示全部楼层 |阅读模式

该帖子包含附件可供参考学习和下载,您可以 搜索 更多您想要的资源


  • 建筑类别:住宅,商业
  • 建筑高度类型:多层建筑
  • 建筑设计面积:4986.8平方米
  • 建筑地上层数:6层
  • 建筑地下层数:1层
  • 图纸设计深度:施工图
  • 参考图纸:27张
  • 设计年代:近代
  • 地下室用途:其它
  • 负荷等级:二级
  • 防雷等级:第三类
  • 接地方式:TN-C-S
  • 强电设计:低压配电,电气照明,建筑物防雷,接地安全
  • 弱电设计: 火灾自动报警系统 ,综合布线系统,有线电视和卫星接收系统

附件详情

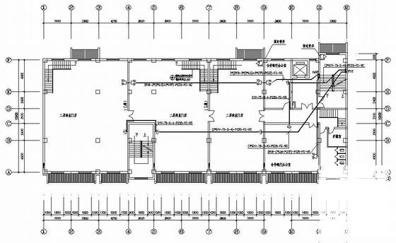
本建筑物地上六层,地下一层。一~二层为商业门点,三~六层为客房。建筑设计结构形式为框架结构,房屋建筑总高度22.95米,建筑面积为4986.8平方米,属于三类多层建筑。
设计范围:供配电及 照明系统 、接地与防雷系统、综合布线系统、火灾自动报警系统、有线电视系统等。


第 1 张图
第 1 张图
第 2 张图
第 2 张图
第 3 张图
第 3 张图
第 4 张图
第 4 张图
以上是部分图纸截图,有些图框没有放大后再截图,可能截图里不清晰或者看不到内容,您可以在下载后查看具体内容

温馨提示:该资料由网友于2020-2-18 11:29:26上传分享,您可以下载该资料进行学习和参考,如有侵权内容或者违法行为,请及时联系站长删除,如有疑问,您可以在商业建筑专区发帖交流相关知识。

附件2099v11edeccccwcwc0ecdescc.rar

1.63 MB

下载  售价: 100 积分    赚积分

相关帖子

回复

使用道具 举报

您需要登录后才可以回帖 登录 | 立即注册

本版积分规则

QQ|联系我们|豆豆网 ( 苏ICP备20004746号-1 )

GMT+8, 2025-12-28 13:14 , Processed in 0.027592 second(s), 27 queries .

本站所有内容均由网友自主分享,如有侵权内容或者违法行为,请及时联系站长删除,本站将根据实际情况进行积分奖励!请查看:免责声明

快速回复 返回顶部 返回列表