豆豆网

 找回密码
 立即注册

QQ登录

只需一步,快速开始

查看: 2106|回复: 0

一份19层小区住宅楼电气设计CAD施工图纸

[复制链接]

0

主题

0

帖子

1111

积分

超级版主

Rank: 8Rank: 8

积分
1111
发表于 2020-2-18 11:38:36 | 显示全部楼层 |阅读模式

该帖子包含附件可供参考学习和下载,您可以 搜索 更多您想要的资源


  • 建筑类别:住宅
  • 建筑地上层数:19层
  • 图纸设计深度:施工图
  • 参考图纸:18张
  • 接地方式:TN-S
  • 强电设计:低压配电, 电气照明, 建筑物防雷, 接地安全
  • 弱电设计:通信系统, 有线电视和卫星接收系统, 信息网络系统

附件详情

  • 1、电气设计说明
  • 2、配电干线系统图
  • 3、 配电箱系统
  • 4、弱电系统图
  • 5、消防系统图
  • 6、电视系统图
  • 7、电话系统图
  • 8、对讲系统图
  • 9、 照明平面图
  • 10、 弱电平面图
  • 11、电力平面图
  • 12、防雷接地平面图

附件详情

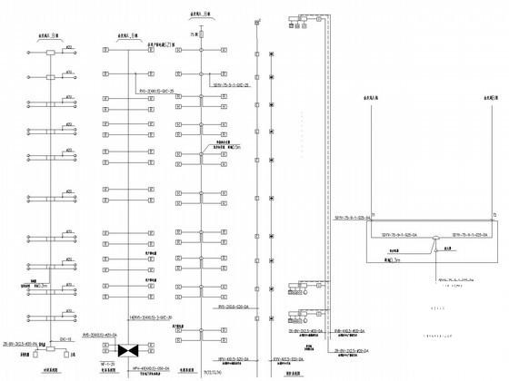
该附件是十九层小区电气施工图纸,总共18张。

二-十六层弱电平面图

配电箱系统图

弱电系统图

第 1 张图
第 1 张图
第 2 张图
第 2 张图
第 3 张图
第 3 张图
第 4 张图
第 4 张图
以上是部分图纸截图,有些图框没有放大后再截图,可能截图里不清晰或者看不到内容,您可以在下载后查看具体内容

温馨提示:该资料由网友于2020-2-18 11:38:36上传分享,您可以下载该资料进行学习和参考,如有侵权内容或者违法行为,请及时联系站长删除,如有疑问,您可以在电气工程专区发帖交流相关知识。

附件2099v11edecedw2c2e2csedfc2.rar

1.56 MB

下载  售价: 100 积分    赚积分

相关帖子

回复

使用道具 举报

您需要登录后才可以回帖 登录 | 立即注册

本版积分规则

QQ|联系我们|豆豆网 ( 苏ICP备20004746号-1 )

GMT+8, 2025-12-18 22:18 , Processed in 0.017701 second(s), 28 queries .

本站所有内容均由网友自主分享,如有侵权内容或者违法行为,请及时联系站长删除,本站将根据实际情况进行积分奖励!请查看:免责声明

快速回复 返回顶部 返回列表