豆豆网

 找回密码
 立即注册

QQ登录

只需一步,快速开始

查看: 2602|回复: 0

一份12层小区住宅楼电气设计CAD施工图纸

[复制链接]

0

主题

0

帖子

1736

积分

超级版主

Rank: 8Rank: 8

积分
1736
发表于 2020-2-18 11:45:07 | 显示全部楼层 |阅读模式

该帖子包含附件可供参考学习和下载,您可以 搜索 更多您想要的资源


  • 建筑类别:住宅
  • 建筑高度类型:高层建筑
  • 建筑设计结构形式:钢筋混凝土结构
  • 建筑地上层数:12层
  • 图纸设计深度:施工图
  • 参考图纸:19张
  • 地下室用途:其它
  • 接地方式:TN-C-S
  • 强电设计:低压配电,建筑物防雷,接地安全
  • 弱电设计:出入口控制系统,通信系统,有线电视和卫星接收系统,信息网络系统

附件详情

  • 1、 电气设计 说明
  • 2、强电系统图
  • 3、弱电系统图
  • 4、干线配电平面图
  • 5、强电平面图
  • 6、 弱电平面图
  • 7、等电位联结平面
  • 8、屋顶防雷平面

附件详情

该附件是小区住宅楼全套电气施工图纸,总共19张。
本建筑为高层住宅建筑,一层为储藏室。二到十二层为住宅。该项目属于二类高层建筑。
该项目设计包括红线内的以下电气系统:1)220/380V配电系统;2)建筑物防雷.接地系统及安全措施;3)有线电视系统;4)电话系统及网络通信系统;5)访客对讲系统;

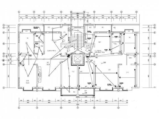
二层弱电平面

弱电系统图

配电箱系统

第 1 张图
第 1 张图
第 2 张图
第 2 张图
第 3 张图
第 3 张图
第 4 张图
第 4 张图
以上是部分图纸截图,有些图框没有放大后再截图,可能截图里不清晰或者看不到内容,您可以在下载后查看具体内容

温馨提示:该资料由网友于2020-2-18 11:45:07上传分享,您可以下载该资料进行学习和参考,如有侵权内容或者违法行为,请及时联系站长删除,如有疑问,您可以在电气工程专区发帖交流相关知识。

附件2099v11edecef0fssdcce0ccc1.rar

1.17 MB

下载  售价: 100 积分    赚积分

相关帖子

回复

使用道具 举报

您需要登录后才可以回帖 登录 | 立即注册

本版积分规则

QQ|联系我们|豆豆网 ( 苏ICP备20004746号-1 )

GMT+8, 2025-12-18 02:07 , Processed in 0.016797 second(s), 28 queries .

本站所有内容均由网友自主分享,如有侵权内容或者违法行为,请及时联系站长删除,本站将根据实际情况进行积分奖励!请查看:免责声明

快速回复 返回顶部 返回列表