豆豆网

 找回密码
 立即注册

QQ登录

只需一步,快速开始

查看: 753|回复: 0

一份10层过夜港及旅游集散中心强弱电CAD施工图纸含总图纸(大院最新)

[复制链接]

0

主题

0

帖子

1516

积分

超级版主

Rank: 8Rank: 8

积分
1516
发表于 2020-2-18 11:45:10 | 显示全部楼层 |阅读模式

该帖子包含附件可供参考学习和下载,您可以 搜索 更多您想要的资源


  • 建筑类别:商业

  • 建筑高度类型:高层建筑

  • 建筑设计结构形式:钢筋混凝土结构

  • 建筑设计面积:39077.37平方米

  • 建筑地上层数:10层

  • 建筑地下层数:2层

  • 图纸设计深度:施工图

  • 参考图纸:78张

  • 设计年代:近代

  • 地下室用途:车库,设备用房,其它

  • 负荷等级:一级

  • 项目所在地:重庆


一、项目概要

该项目为过夜港及旅游集散中心项目,该项目总建筑面积39077.37平方米。由10层的二类高层公共建筑(1层为大厅及会议室、2层为餐厅、3~9层为客房、10层为会议室,建筑高度44.2米)、1#2#商业裙房(其中1#商业建筑面积为4474.72平方米,2#商业建筑面积为3973.18平方米)及层地下车库(停车数量360辆,为Ⅰ类停车库)组成。建筑结构为框架结构,建筑防火等级为一级。图纸类型:DWG。


二、设计范围

供配电系统 及公共用房照明设计;凡二次装修场所只设计到初装为止;防雷及基础接地;)火灾报警系统设计(详消防专篇)配合园林设计单位预留照明电源;电视、电话、网络及监控设计(设计仅预留预埋相应管线其余设计由甲方另行委托专业公司设计);热水泵房该资料仅作一般配电及消防报警联动设计(其余设计由另行委托专业公司设计,设计须按《锅炉房设计规范》相应规定设计)


三、负荷等级

一级负荷:车库应急照明、消防风机、集水泵等,其安装容量493.6KW。

二级负荷:酒店应急照明、消防风机、消防电梯、酒店大堂照明、走道公共照明等,其安装容量为169KW。

三级负荷:除一级、二级负荷以外的用电设备,其安装容量为1911KW。


四、图纸展示

游客接待中心负一层 照明平面图

游客接待中心三层配电平面图

组合一层消防报警平面图

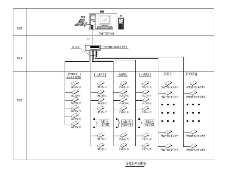
能源监控系统图

防火门监控系统图

火灾自动报警及消防联动系统图

设备房布置及接地平面图

B2、B3变压器低压配电系统图

10KV高压系统图

竖向干线系统图




旅游集散中心 - 1
第 1 张图
旅游集散中心 - 2
第 2 张图
旅游集散中心 - 3
第 3 张图
旅游集散中心 - 4
第 4 张图
旅游集散中心 - 5
第 5 张图
旅游集散中心 - 6
第 6 张图
旅游集散中心 - 7
第 7 张图
旅游集散中心 - 8
第 8 张图
旅游集散中心 - 9
第 9 张图
旅游集散中心 - 10
第 10 张图
以上是部分图纸截图,有些图框没有放大后再截图,可能截图里不清晰或者看不到内容,您可以在下载后查看具体内容

温馨提示:该资料由网友于2020-2-18 11:45:10上传分享,您可以下载该资料进行学习和参考,如有侵权内容或者违法行为,请及时联系站长删除,如有疑问,您可以在建筑施工专区发帖交流相关知识。

附件2099v11edeeef2f0dscfdcfce2.rar

5.39 MB

下载  售价: 100 积分    赚积分

旅游集散中心相关帖子

回复

使用道具 举报

您需要登录后才可以回帖 登录 | 立即注册

本版积分规则

QQ|联系我们|豆豆网 ( 苏ICP备20004746号-1 )

GMT+8, 2025-12-28 11:26 , Processed in 0.017902 second(s), 28 queries .

本站所有内容均由网友自主分享,如有侵权内容或者违法行为,请及时联系站长删除,本站将根据实际情况进行积分奖励!请查看:免责声明

快速回复 返回顶部 返回列表