豆豆网

 找回密码
 立即注册

QQ登录

只需一步,快速开始

查看: 2070|回复: 0

一类高层住宅楼电气设计CAD施工图纸

[复制链接]

0

主题

0

帖子

1384

积分

超级版主

Rank: 8Rank: 8

积分
1384
发表于 2020-2-18 11:45:15 | 显示全部楼层 |阅读模式

该帖子包含附件可供参考学习和下载,您可以 搜索 更多您想要的资源


  • 建筑类别:住宅
  • 建筑高度类型:高层建筑
  • 建筑设计面积:10947.4平方米
  • 建筑地上层数:21层
  • 建筑地下层数:1层
  • 设计年代:近代
  • 地下室用途:设备用房,其它
  • 节点大样:等电位联结
  • 负荷等级:一级
  • 防雷等级:第三类
  • 接地方式:TN-C-S
  • 项目所在地:山西
  • 强电设计:低压配电,电气照明,建筑物防雷,接地安全
  • 弱电设计: 火灾自动报警系统 ,出入口控制系统,通信系统,有线电视和卫星接收系统

附件详情

  • 1、电气设计说明
  • 2、配电系统图
  • 3、低压配电系统图
  • 4、竖向配电系统图
  • 5、剩余电流监测报警系统图
  • 6、消防应急照明系统图
  • 7、光纤到户通信系统图
  • 8、火灾自动报警系统图
  • 9、有线电视、可视对讲系统图
  • 10、配电平面图
  • 11、 照明平面图
  • 12、火灾自动报警平面图
  • 13、 弱电平面图
  • 14、防雷接地平面图

附件详情

该附件是[山西]一类高层住宅楼全套电气施工图纸,总共36张。
该项目概况:该项目为高层住宅楼。地下层为设备用房和住宅储藏用房,层高3.6m;一~二十一层为住宅,层高3m;屋顶为电梯机房,层高4.9m。建筑高度63.45m,建筑面积为10947.4m2,室内外高差0.45m。为一类高层建筑。
该资料内容:照明、动力系统;防雷接地;等电位联结;火灾自动报警系统;光纤到户通信系统;电视、可视对讲两个系统的预埋部分。

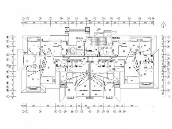
一层火灾自动报警平面图一

一层弱电平面图

消防应急照明系统图

配电系统图

第 1 张图
第 1 张图
第 2 张图
第 2 张图
第 3 张图
第 3 张图
第 4 张图
第 4 张图
第 5 张图
第 5 张图
以上是部分图纸截图,有些图框没有放大后再截图,可能截图里不清晰或者看不到内容,您可以在下载后查看具体内容

温馨提示:该资料由网友于2020-2-18 11:45:15上传分享,您可以下载该资料进行学习和参考,如有侵权内容或者违法行为,请及时联系站长删除,如有疑问,您可以在电气工程专区发帖交流相关知识。

附件2099v11edecee1ed11se02010c.rar

1.31 MB

下载  售价: 100 积分    赚积分

相关帖子

回复

使用道具 举报

您需要登录后才可以回帖 登录 | 立即注册

本版积分规则

QQ|联系我们|豆豆网 ( 苏ICP备20004746号-1 )

GMT+8, 2025-12-16 19:09 , Processed in 0.016514 second(s), 27 queries .

本站所有内容均由网友自主分享,如有侵权内容或者违法行为,请及时联系站长删除,本站将根据实际情况进行积分奖励!请查看:免责声明

快速回复 返回顶部 返回列表