豆豆网

 找回密码
 立即注册

QQ登录

只需一步,快速开始

查看: 2840|回复: 0

18层住宅楼电气设计CAD施工图纸(火灾自动报警)

[复制链接]

0

主题

0

帖子

1737

积分

超级版主

Rank: 8Rank: 8

积分
1737
发表于 2020-2-18 12:27:56 | 显示全部楼层 |阅读模式

该帖子包含附件可供参考学习和下载,您可以 搜索 更多您想要的资源


  • 建筑类别:住宅
  • 建筑高度类型:高层建筑
  • 建筑设计结构形式:钢筋混凝土结构
  • 建筑设计面积:10819.95平方米
  • 建筑地上层数:18层
  • 建筑地下层数:1层
  • 图纸设计深度:施工图
  • 参考图纸:32张
  • 设计年代:近代
  • 地下室用途:车库
  • 节点大样:等电位联结,其它
  • 负荷等级:三级
  • 防雷等级:第三类
  • 火灾保护分级:二级
  • 接地方式:TN-S
  • 项目所在地:河北
  • 强电设计:供配电系统,低压配电,电气照明,建筑物防雷,接地安全,电气控制,其它
  • 弱电设计: 火灾自动报警系统 ,通信系统,有线电视和卫星接收系统,信息网络系统,呼应信号及信息显示,其它

附件详情

  • 1、电气设计说明
  • 2、商业部分竖向干线系统图
  • 3、住宅部分竖向干线系统图
  • 4、有线电视系统图
  • 5、电话、网络系统图
  • 6、楼宇可视对讲系统图
  • 7、卫生间局部等电位联结示意图
  • 8、总等电位联结示意图
  • 9、配电干线平面图
  • 10、电气竖井布置图
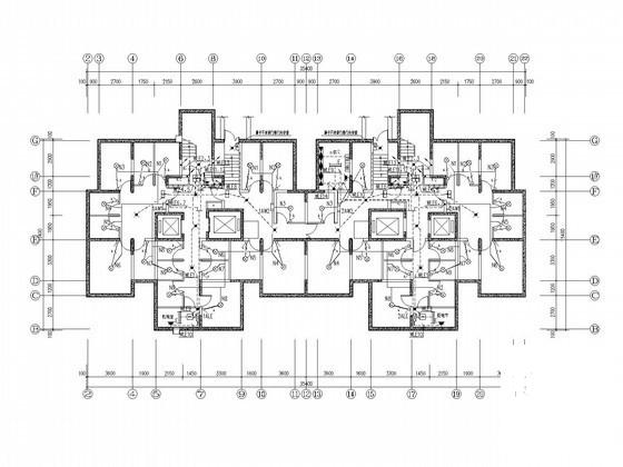
  • 11、照明平面图
  • 12、插座平面图
  • 13、 弱电平面图
  • 14、火灾自动报警平面图
  • 15、设备机房电气平面图
  • 16、屋顶 防雷平面图

附件详情

该附件是[河北]十八层住宅全套电气施工图纸,总共32张。
项目为剪力墙结构,地下1层,地上18层,建筑高度53.35米,总建筑设计面积:10819.95平方米。
强电设计包括:220/380V配电系统、电气照明、建筑物防雷、接地系统及安全措施、火灾自动报警系统。
弱电设计包括:有线电视系统、电话系统、信息网络系统、楼宇可视对讲系统。

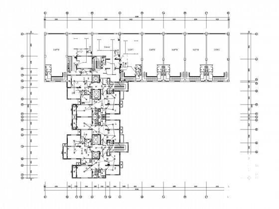
二层照明平面图

总等电位联结示意图

竖向干线系统图

设备机房电气平面图

电气竖井布置图

卫生间局部等电位联结示意图

第 1 张图
第 1 张图
第 2 张图
第 2 张图
第 3 张图
第 3 张图
第 4 张图
第 4 张图
第 5 张图
第 5 张图
第 6 张图
第 6 张图
以上是部分图纸截图,有些图框没有放大后再截图,可能截图里不清晰或者看不到内容,您可以在下载后查看具体内容

温馨提示:该资料由网友于2020-2-18 12:27:56上传分享,您可以下载该资料进行学习和参考,如有侵权内容或者违法行为,请及时联系站长删除,如有疑问,您可以在电气工程专区发帖交流相关知识。

附件2099v11edecefcwfe1fcc1f2d2.rar

1.53 MB

下载  售价: 100 积分    赚积分

相关帖子

回复

使用道具 举报

您需要登录后才可以回帖 登录 | 立即注册

本版积分规则

QQ|联系我们|豆豆网 ( 苏ICP备20004746号-1 )

GMT+8, 2025-12-31 21:14 , Processed in 0.021568 second(s), 28 queries .

本站所有内容均由网友自主分享,如有侵权内容或者违法行为,请及时联系站长删除,本站将根据实际情况进行积分奖励!请查看:免责声明

快速回复 返回顶部 返回列表