豆豆网

 找回密码
 立即注册

QQ登录

只需一步,快速开始

查看: 1943|回复: 0

钢结构屋盖结构设计施工cad图,节点详图和设计说明

[复制链接]

0

主题

0

帖子

908

积分

超级版主

Rank: 8Rank: 8

积分
908
发表于 2020-11-10 21:20:23 | 显示全部楼层 |阅读模式

该帖子包含附件可供参考学习和下载,您可以 搜索 更多您想要的资源


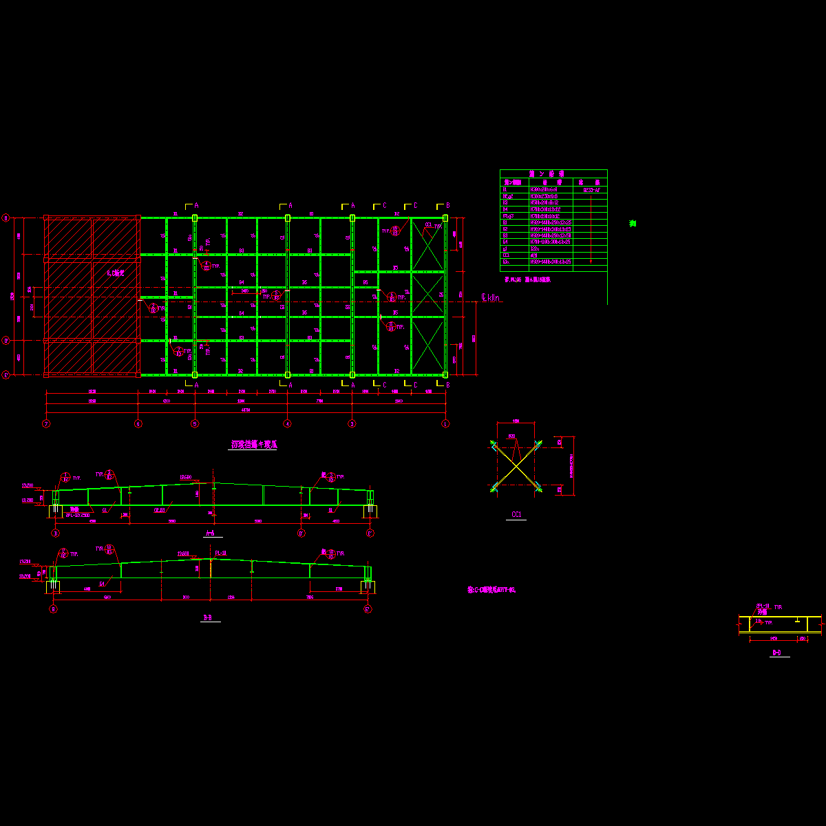
混凝土柱上的屋盖钢构系统   该资料包含:设计说明,屋面结构平面图,屋面檩条布置图,预埋件布置图,天窗架结构图,节点详图   共7张图纸。

dyt天窗架结构图 -05.dwg
dyt天窗架结构图 -05.dwg
图纸目录及总说明.dwg
图纸目录及总说明.dwg
屋面檩条布置图.dwg
屋面檩条布置图.dwg
屋面结构平面图.dwg
屋面结构平面图.dwg
节点详图之一.dwg
节点详图之一.dwg
节点详图之二.dwg
节点详图之二.dwg
预埋件布置图.dwg
预埋件布置图.dwg
以上是部分图纸截图,有些图框没有放大后再截图,可能截图里不清晰或者看不到内容,您可以在下载后查看具体内容

附件2099v11ec2cec22fs22sw2f.rar

447.46 KB

下载  售价: 100 积分    赚积分

钢结构节点详图设计相关帖子

回复

使用道具 举报

您需要登录后才可以回帖 登录 | 立即注册

本版积分规则

QQ|联系我们|豆豆网 ( 苏ICP备20004746号-1 )

GMT+8, 2025-12-28 07:54 , Processed in 0.015165 second(s), 28 queries .

本站所有内容均由网友自主分享,如有侵权内容或者违法行为,请及时联系站长删除,本站将根据实际情况进行积分奖励!请查看:免责声明

快速回复 返回顶部 返回列表