豆豆网

 找回密码
 立即注册

QQ登录

只需一步,快速开始

查看: 4226|回复: 0

[CAD]裙楼屋面采光顶图纸(大样图).dwg

[复制链接]

0

主题

0

帖子

1390

积分

超级版主

Rank: 8Rank: 8

积分
1390
发表于 2020-11-19 21:04:17 | 显示全部楼层 |阅读模式

该帖子包含附件可供参考学习和下载,您可以 搜索 更多您想要的资源


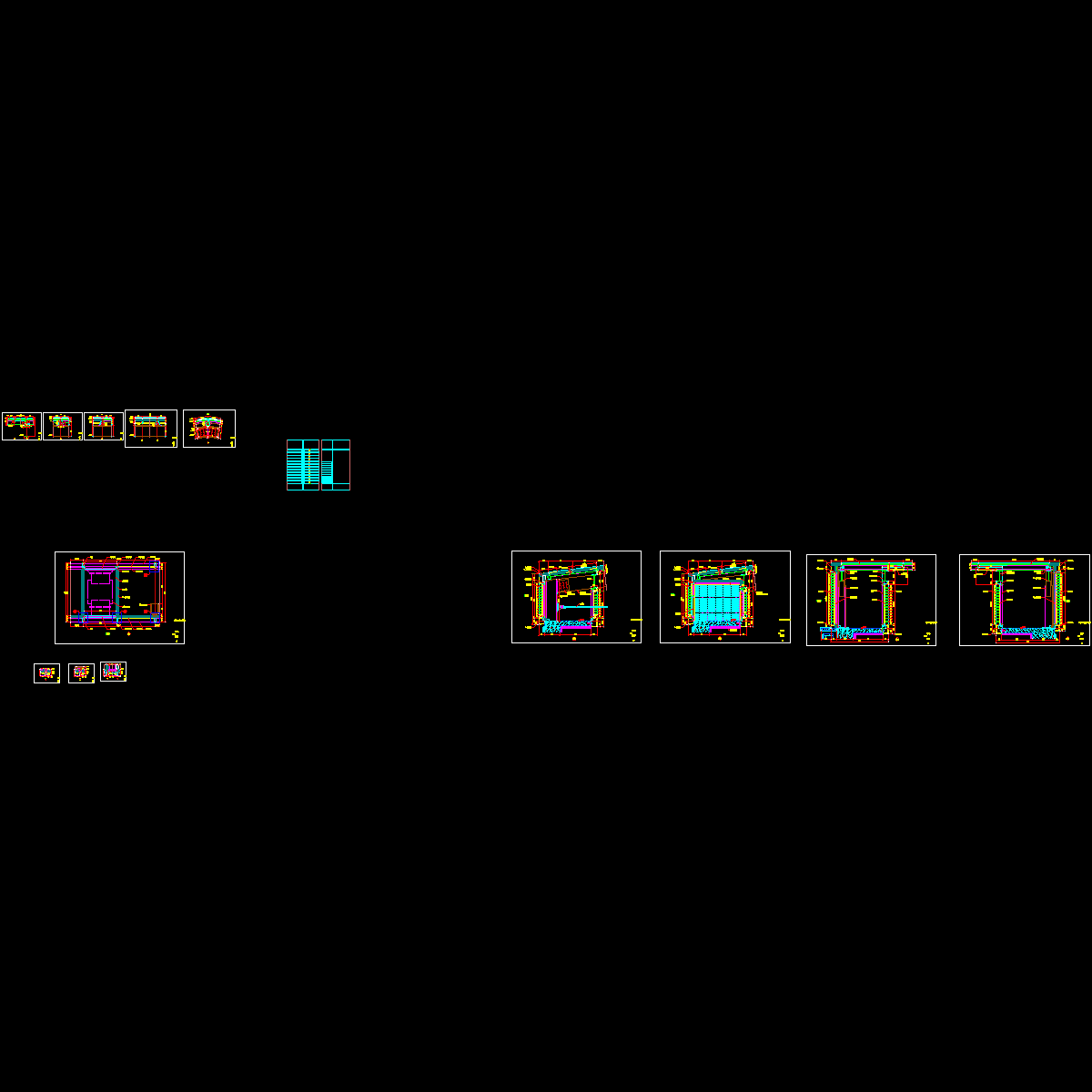
某裙楼屋面采光顶图   该资料为:某裙楼屋面采光顶图   该资料包含:   裙楼屋面采光顶主骨架布置、采光顶剖视图、采光顶立面视图、裙楼屋面南区采光顶大样图、裙楼屋面南区采光顶平剖视图共18张图纸。

采光顶图.dwg
采光顶图.dwg
采光顶节点.dwg
采光顶节点.dwg
以上是部分图纸截图,有些图框没有放大后再截图,可能截图里不清晰或者看不到内容,您可以在下载后查看具体内容

附件2099v11ec220c1c0d01dedd.rar

1.35 MB

下载  售价: 100 积分    赚积分

屋面采光顶相关帖子

回复

使用道具 举报

您需要登录后才可以回帖 登录 | 立即注册

本版积分规则

QQ|联系我们|豆豆网 ( 苏ICP备20004746号-1 )

GMT+8, 2025-12-27 21:10 , Processed in 0.015158 second(s), 27 queries .

本站所有内容均由网友自主分享,如有侵权内容或者违法行为,请及时联系站长删除,本站将根据实际情况进行积分奖励!请查看:免责声明

快速回复 返回顶部 返回列表