豆豆网

 找回密码
 立即注册

QQ登录

只需一步,快速开始

查看: 3389|回复: 0

多层商业建筑群电气设计CAD施工图纸(10kv供电)

[复制链接]

0

主题

0

帖子

1736

积分

超级版主

Rank: 8Rank: 8

积分
1736
发表于 2020-2-18 19:55:00 | 显示全部楼层 |阅读模式

该帖子包含附件可供参考学习和下载,您可以 搜索 更多您想要的资源


  • 建筑类别:商业
  • 建筑高度类型:多层建筑
  • 建筑设计结构形式:钢筋混凝土结构
  • 图纸设计深度:施工图
  • 参考图纸:43张
  • 节点大样:防雷接地,其它
  • 负荷等级:一级
  • 防雷等级:第二类
  • 接地方式:TN-S
  • 项目所在地:广东
  • 强电设计: 供配电系统 ,配变电所,低压配电,电气照明,建筑物防雷,接地安全

附件详情

  • 1、电气设计说明
  • 2、10KV供电系统图
  • 3、低压供电系统图
  • 4、 配电箱系统
  • 5、变、配电房设备布置平面图,接地平面图
  • 6、动力配电平面图
  • 7、 照明平面图
  • 8、防雷接地平面图

附件详情

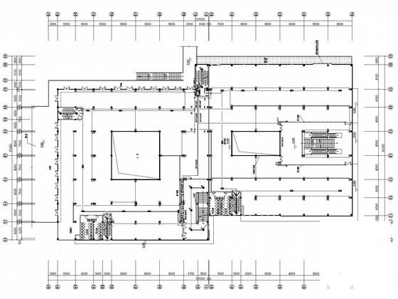
该附件是[广东]多层商业建筑群电气施工图纸,总共43张。该项目A栋地上12层。建筑总高度43.15m,总建筑面积23595.96m,设有商业、客房、设备房等。B栋地上3层。建筑总高度16m,总建筑面积15315.21m,设有商业,设备房等。
电气设计包括变配电,低压供电及照明系统.消防电气等弱电系统,接地及防雷系统独立设计出图。

10KV供电系统图

低压供电系统图二

配电箱系统图

引下线在挑檐处做法

B栋综合市场基础接地平面图

商业建筑电气设计 - 1
第 1 张图
商业建筑电气设计 - 2
第 2 张图
商业建筑电气设计 - 3
第 3 张图
商业建筑电气设计 - 4
第 4 张图
商业建筑电气设计 - 5
第 5 张图
商业建筑电气设计 - 6
第 6 张图
以上是部分图纸截图,有些图框没有放大后再截图,可能截图里不清晰或者看不到内容,您可以在下载后查看具体内容

温馨提示:该资料由网友于2020-2-18 19:55:00上传分享,您可以下载该资料进行学习和参考,如有侵权内容或者违法行为,请及时联系站长删除,如有疑问,您可以在商业建筑专区发帖交流相关知识。

附件2099v11edece2efedw2d0cf1sf.rar

4.83 MB

下载  售价: 100 积分    赚积分

商业建筑电气设计相关帖子

回复

使用道具 举报

您需要登录后才可以回帖 登录 | 立即注册

本版积分规则

QQ|联系我们|豆豆网 ( 苏ICP备20004746号-1 )

GMT+8, 2025-12-18 21:16 , Processed in 0.017131 second(s), 27 queries .

本站所有内容均由网友自主分享,如有侵权内容或者违法行为,请及时联系站长删除,本站将根据实际情况进行积分奖励!请查看:免责声明

快速回复 返回顶部 返回列表