豆豆网

 找回密码
 立即注册

QQ登录

只需一步,快速开始

查看: 2336|回复: 0

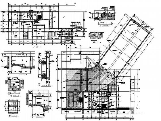
一份小区地下室人防建筑CAD图纸

[复制链接]

0

主题

0

帖子

1737

积分

超级版主

Rank: 8Rank: 8

积分
1737
发表于 2020-2-18 20:20:01 | 显示全部楼层 |阅读模式

该帖子包含附件可供参考学习和下载,您可以 搜索 更多您想要的资源


  • 图纸设计深度:施工图
  • 图纸设计格式:天正建筑CAD 7.0,CAD2000
  • 建筑设计面积:23000平方米
  • 设计效果图:无

附件详情

本图纸为某小区地下室人防建筑图,面积有23000多平方米,分为战时图和平时图,详图清楚。人防地下室设计使用年限为50年。建筑安全等级为二级,耐火等级为一级。防水等级为二级(变电所用房为一级),地下室不允许漏水.结构自防水详结施.建筑抗震设防烈度为六度,建筑抗震设防类别为丙类……

第 1 张图
第 1 张图
第 2 张图
第 2 张图
第 3 张图
第 3 张图
第 4 张图
第 4 张图
以上是部分图纸截图,有些图框没有放大后再截图,可能截图里不清晰或者看不到内容,您可以在下载后查看具体内容

温馨提示:该资料由网友于2020-2-18 20:20:01上传分享,您可以下载该资料进行学习和参考,如有侵权内容或者违法行为,请及时联系站长删除,如有疑问,您可以在居住建筑专区发帖交流相关知识。

附件2099v11eddfccwdede00fcc1de.rar

5.66 MB

下载  售价: 100 积分    赚积分

相关帖子

回复

使用道具 举报

您需要登录后才可以回帖 登录 | 立即注册

本版积分规则

QQ|联系我们|豆豆网 ( 苏ICP备20004746号-1 )

GMT+8, 2025-12-28 11:41 , Processed in 0.026502 second(s), 27 queries .

本站所有内容均由网友自主分享,如有侵权内容或者违法行为,请及时联系站长删除,本站将根据实际情况进行积分奖励!请查看:免责声明

快速回复 返回顶部 返回列表