豆豆网

 找回密码
 立即注册

QQ登录

只需一步,快速开始

查看: 3064|回复: 0

5层多层商住楼电气CAD施工图纸

[复制链接]

0

主题

0

帖子

629

积分

超级版主

Rank: 8Rank: 8

积分
629
发表于 2020-2-19 16:37:09 | 显示全部楼层 |阅读模式

该帖子包含附件可供参考学习和下载,您可以 搜索 更多您想要的资源


  • 建筑类别:住宅,商业
  • 建筑高度类型:多层建筑
  • 建筑地上层数:5层
  • 图纸设计深度:施工图
  • 参考图纸:20张
  • 防雷等级:第三类
  • 接地方式:TN-C,TN-C-S
  • 项目所在地:四川
  • 强电设计:低压配电,电气照明,建筑物防雷,接地安全
  • 弱电设计:出入口控制系统,综合布线系统,通信系统,有线电视和卫星接收系统

附件详情

  • 1、电气设计说明
  • 2、配电系统图
  • 3、配电干线平面图
  • 4、 照明平面图
  • 5、 弱电平面图
  • 6、多功能访客对讲平面图
  • 7、防雷接地平面图

附件详情

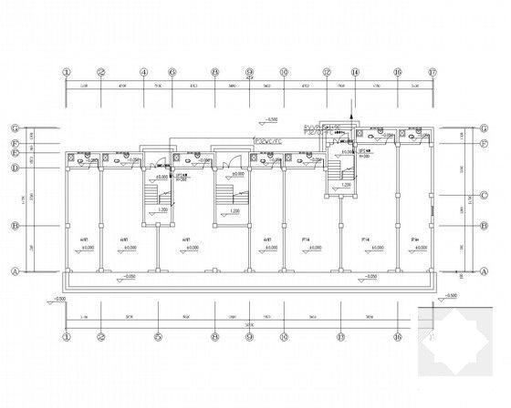
该附件是[四川]多层商住楼全套电气施工图纸,总共20张。
该项目强电设计包括:1、低压配电系统 2、 照明系统 3、防雷及接地系统;弱电设计:1电视电话系统2、多功能访客系统3、综合布线系统

照明平面图

配电干线平面图

访客对讲平面图

插座平面图

配电干线系统图

第 1 张图
第 1 张图
第 2 张图
第 2 张图
第 3 张图
第 3 张图
第 4 张图
第 4 张图
第 5 张图
第 5 张图
第 6 张图
第 6 张图
以上是部分图纸截图,有些图框没有放大后再截图,可能截图里不清晰或者看不到内容,您可以在下载后查看具体内容

温馨提示:该资料由网友于2020-2-19 16:37:09上传分享,您可以下载该资料进行学习和参考,如有侵权内容或者违法行为,请及时联系站长删除,如有疑问,您可以在商业建筑专区发帖交流相关知识。

附件2099v11edece1c12000ds00f1c.rar

643.4 KB

下载  售价: 100 积分    赚积分

相关帖子

回复

使用道具 举报

您需要登录后才可以回帖 登录 | 立即注册

本版积分规则

QQ|联系我们|豆豆网 ( 苏ICP备20004746号-1 )

GMT+8, 2025-12-29 05:09 , Processed in 0.015335 second(s), 28 queries .

本站所有内容均由网友自主分享,如有侵权内容或者违法行为,请及时联系站长删除,本站将根据实际情况进行积分奖励!请查看:免责声明

快速回复 返回顶部 返回列表