豆豆网

 找回密码
 立即注册

QQ登录

只需一步,快速开始

查看: 3357|回复: 0

一份16层商住楼电气CAD施工图纸

[复制链接]

0

主题

0

帖子

963

积分

超级版主

Rank: 8Rank: 8

积分
963
发表于 2020-2-19 16:37:10 | 显示全部楼层 |阅读模式

该帖子包含附件可供参考学习和下载,您可以 搜索 更多您想要的资源


  • 建筑类别:住宅, 商业
  • 建筑高度类型:高层建筑
  • 建筑设计结构形式:钢筋混凝土结构
  • 建筑设计面积:18000平方米
  • 建筑地上层数:16层
  • 建筑地下层数:1层
  • 图纸设计深度:施工图
  • 参考图纸:26张
  • 地下室用途:车库
  • 负荷等级:二级
  • 火灾保护分级:二级
  • 强电设计:低压配电, 电气照明, 建筑物防雷, 接地安全
  • 弱电设计: 火灾自动报警系统

附件详情

  • 1、电气设计说明
  • 2、高压配电柜系统图
  • 3、低压配电柜系统图
  • 4、双电源切换箱系统图
  • 5、火灾报警及消防联动系统图
  • 6、动力平面图
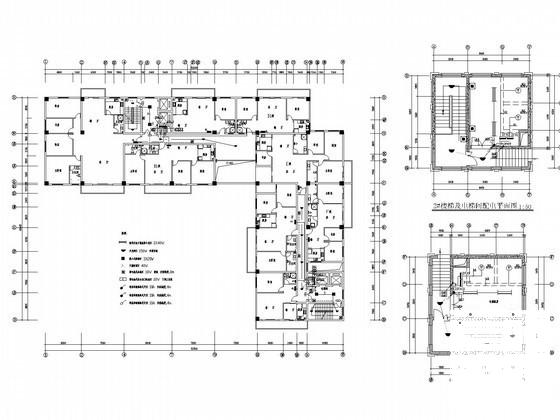
  • 7、 照明平面图
  • 8、配电平面图
  • 9、火灾自动报警平面图
  • 10、屋顶 防雷平面图

附件详情

该附件是十六层商住楼全套电气施工图纸,总共26张。
该项目为商住楼,共16层,属二类高层建筑。其中地下一层为车库;地上1、3层为商场,2层为餐厅,4层为管理用房,5~15层为住宅。建筑面积约18000m ,主体高度49.30m,建筑设计结构形式为框架结构。
设计范围:高、低压配电系统,动力、照明系统,防雷接地系统,火灾自动报警系统。

照明平面图

排烟机、卷帘门及潜水泵切换箱双电源切换箱配电系统图

低压配电柜系统图

低压配电干线系统图

第 1 张图
第 1 张图
第 2 张图
第 2 张图
第 3 张图
第 3 张图
第 4 张图
第 4 张图
第 5 张图
第 5 张图
以上是部分图纸截图,有些图框没有放大后再截图,可能截图里不清晰或者看不到内容,您可以在下载后查看具体内容

温馨提示:该资料由网友于2020-2-19 16:37:10上传分享,您可以下载该资料进行学习和参考,如有侵权内容或者违法行为,请及时联系站长删除,如有疑问,您可以在商业建筑专区发帖交流相关知识。

附件2099v11edecf210eecdsdf12e2.rar

597.55 KB

下载  售价: 100 积分    赚积分

相关帖子

回复

使用道具 举报

您需要登录后才可以回帖 登录 | 立即注册

本版积分规则

QQ|联系我们|豆豆网 ( 苏ICP备20004746号-1 )

GMT+8, 2025-12-27 23:14 , Processed in 0.029237 second(s), 28 queries .

本站所有内容均由网友自主分享,如有侵权内容或者违法行为,请及时联系站长删除,本站将根据实际情况进行积分奖励!请查看:免责声明

快速回复 返回顶部 返回列表