豆豆网

 找回密码
 立即注册

QQ登录

只需一步,快速开始

查看: 1500|回复: 0

一份3层实验幼儿园电气设计CAD施工图纸(火灾自动报警)

[复制链接]

0

主题

0

帖子

1321

积分

超级版主

Rank: 8Rank: 8

积分
1321
发表于 2020-2-19 17:11:55 | 显示全部楼层 |阅读模式

该帖子包含附件可供参考学习和下载,您可以 搜索 更多您想要的资源


  • 建筑类别:文化
  • 建筑高度类型:多层建筑
  • 建筑设计结构形式:钢筋混凝土结构
  • 建筑设计面积:3702.74平方米
  • 建筑地上层数:3层
  • 图纸设计深度:施工图
  • 参考图纸:17张
  • 设计年代:近代
  • 负荷等级:二级
  • 防雷等级:第三类
  • 接地方式:TN-C-S
  • 项目所在地:河南
  • 强电设计:低压配电,电气照明,建筑物防雷,接地安全,其它
  • 弱电设计: 火灾自动报警系统 ,出入口控制系统,综合布线系统,通信系统,有线电视和卫星接收系统,信息网络系统,其它

附件详情

  • 1、电气设计说明
  • 2、供电竖向系统图
  • 3、配电箱箱体系统图
  • 4、弱电系统图
  • 5、火灾自动报警系统图
  • 6、配电平面图
  • 7、 照明平面图
  • 8、 弱电平面图
  • 9、消防报警平面图
  • 10、防雷基地平面图

附件详情

该附件是三层实验幼儿园全套电气施工图纸,总共17张。
该项目为实验幼儿园,地上三层,为多层公共建筑,建筑耐火等级为二级框架结构,总建筑面积为3702.74m ,建筑高度为10.80m。,
设计范围:照明配电系统、有线电视系统、网络系统、电话系统、电铃系统、火灾自动报警系统、建筑物防雷接地系统。

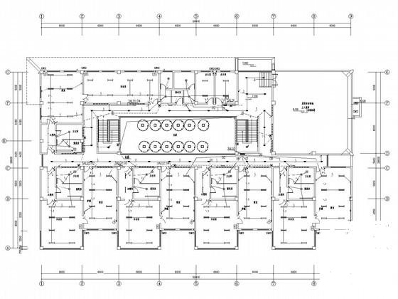
三层照明平面图

火灾自动报警系统图

配电箱箱体系统图

实验幼儿园 - 1
第 1 张图
实验幼儿园 - 2
第 2 张图
实验幼儿园 - 3
第 3 张图
实验幼儿园 - 4
第 4 张图
以上是部分图纸截图,有些图框没有放大后再截图,可能截图里不清晰或者看不到内容,您可以在下载后查看具体内容

温馨提示:该资料由网友于2020-2-19 17:11:55上传分享,您可以下载该资料进行学习和参考,如有侵权内容或者违法行为,请及时联系站长删除,如有疑问,您可以在电气工程专区发帖交流相关知识。

附件2099v11edecfccf2fdd1eeced2.rar

1.4 MB

下载  售价: 100 积分    赚积分

实验幼儿园相关帖子

回复

使用道具 举报

您需要登录后才可以回帖 登录 | 立即注册

本版积分规则

QQ|联系我们|豆豆网 ( 苏ICP备20004746号-1 )

GMT+8, 2025-11-21 08:34 , Processed in 0.014844 second(s), 27 queries .

本站所有内容均由网友自主分享,如有侵权内容或者违法行为,请及时联系站长删除,本站将根据实际情况进行积分奖励!请查看:免责声明

快速回复 返回顶部 返回列表