豆豆网

 找回密码
 立即注册

QQ登录

只需一步,快速开始

查看: 1861|回复: 0

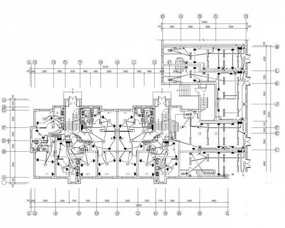
一份5层住宅楼小区电气设计CAD施工图纸

[复制链接]

0

主题

0

帖子

1642

积分

超级版主

Rank: 8Rank: 8

积分
1642
发表于 2020-2-19 17:11:58 | 显示全部楼层 |阅读模式

该帖子包含附件可供参考学习和下载,您可以 搜索 更多您想要的资源


  • 建筑类别:住宅
  • 建筑高度类型:多层建筑
  • 建筑设计结构形式:钢筋混凝土结构
  • 建筑设计面积:3524.7平方米
  • 建筑地上层数:5层
  • 图纸设计深度:施工图
  • 参考图纸:18张
  • 设计年代:近代
  • 负荷等级:三级
  • 防雷等级:第三类
  • 接地方式:TN-C-S
  • 强电设计:低压配电,电气照明,建筑物防雷,接地安全
  • 弱电设计:出入口控制系统,通信系统,有线电视和卫星接收系统,信息网络系统,呼应信号及信息显示

附件详情

  • 1、 电气设计 说明
  • 2、配电系统图
  • 3、弱电系统图
  • 4、电照平面图
  • 5、电气干线平面图
  • 6、 弱电干线平面图
  • 7、 弱电平面图
  • 8、接地平面布置图
  • 9、屋顶防雷平面布置图

附件详情

该附件是五层住宅小区全套电气施工图纸,总共18张。
总建筑高度为29.40米,总建筑面积为3524.7平方米。建筑设计结构形式为框架结构,现浇混凝土楼板.基础为灌注桩基础。该项目属于普通住宅,建筑耐火等级为二级。
设计范围:照明 , 防雷接地 ,有线电视 ,电话 ,网络 ,对讲系统等。
......
,总共18张。

干线平面图

弱电系统图

配电系统图

第 1 张图
第 1 张图
第 2 张图
第 2 张图
第 3 张图
第 3 张图
第 4 张图
第 4 张图
以上是部分图纸截图,有些图框没有放大后再截图,可能截图里不清晰或者看不到内容,您可以在下载后查看具体内容

温馨提示:该资料由网友于2020-2-19 17:11:58上传分享,您可以下载该资料进行学习和参考,如有侵权内容或者违法行为,请及时联系站长删除,如有疑问,您可以在电气工程专区发帖交流相关知识。

附件2099v11edecfs20cdc020f2s2e.rar

1.49 MB

下载  售价: 100 积分    赚积分

相关帖子

回复

使用道具 举报

您需要登录后才可以回帖 登录 | 立即注册

本版积分规则

QQ|联系我们|豆豆网 ( 苏ICP备20004746号-1 )

GMT+8, 2025-12-19 18:14 , Processed in 0.018729 second(s), 27 queries .

本站所有内容均由网友自主分享,如有侵权内容或者违法行为,请及时联系站长删除,本站将根据实际情况进行积分奖励!请查看:免责声明

快速回复 返回顶部 返回列表