豆豆网

 找回密码
 立即注册

QQ登录

只需一步,快速开始

查看: 1757|回复: 0

大型高层办公楼电气设计CAD施工图纸(火灾监控系统图)

[复制链接]

0

主题

0

帖子

1321

积分

超级版主

Rank: 8Rank: 8

积分
1321
发表于 2020-2-19 17:12:01 | 显示全部楼层 |阅读模式

该帖子包含附件可供参考学习和下载,您可以 搜索 更多您想要的资源


  • 建筑类别:办公,其他
  • 建筑高度类型:高层建筑
  • 建筑设计结构形式:钢筋混凝土结构
  • 建筑设计面积:38510平方米
  • 建筑地上层数:21层
  • 建筑地下层数:1层
  • 图纸设计深度:施工图
  • 参考图纸:50张
  • 设计年代:近代
  • 地下室用途:车库,设备用房,其它
  • 负荷等级:三级
  • 防雷等级:第二类
  • 接地方式:TN-S
  • 项目所在地:江苏

附件详情

  • 1、电气设计说明
  • 2、高压配电系统图
  • 3、低压配电系统图
  • 4、火灾报警系统图
  • 5、火灾监控系统图
  • 6、视频监控系统图
  • 7、有线电视系统图
  • 8、综合布线系统图
  • 9、残卫呼叫系统图
  • 10、配电箱系统图
  • 11、变配电间接地图
  • 12、变配电间布置图
  • 13、电力平面图
  • 14、 防雷平面图
  • 15、基础接地平面图
  • 16、火灾报警及 弱电平面图
  • 17、 照明平面图

附件详情

该附件为[江苏]大型高层办公楼电气施工图纸,共50张。
项目概要:该项目位于江苏省。地上21层为办公,地下一层为汽车库及设备用房,建筑高度81.2米。总建筑面积为38510平方米。
设计范围:1、10kV高压配电;2、供配电系统;3、照明系统;4、防雷接地及安全系统;5、电气火灾监控系统;6、火灾报警和联动控制系统;7、有线电视系统;8、综合布线系统;9、安全防范系统。
......
,总共50张。


电力平面图

低压配电系统图

配电箱系统图

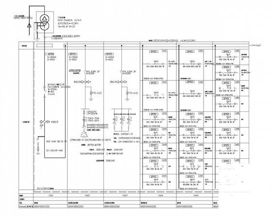
电气火灾监控系统图 - 1
第 1 张图
电气火灾监控系统图 - 2
第 2 张图
电气火灾监控系统图 - 3
第 3 张图
电气火灾监控系统图 - 4
第 4 张图
以上是部分图纸截图,有些图框没有放大后再截图,可能截图里不清晰或者看不到内容,您可以在下载后查看具体内容

温馨提示:该资料由网友于2020-2-19 17:12:01上传分享,您可以下载该资料进行学习和参考,如有侵权内容或者违法行为,请及时联系站长删除,如有疑问,您可以在电气工程专区发帖交流相关知识。

附件2099v11edecf1cdc1eec22s0cc.zip

6.09 MB

下载  售价: 100 积分    赚积分

电气火灾监控系统图相关帖子

回复

使用道具 举报

您需要登录后才可以回帖 登录 | 立即注册

本版积分规则

QQ|联系我们|豆豆网 ( 苏ICP备20004746号-1 )

GMT+8, 2025-12-17 23:48 , Processed in 0.036853 second(s), 27 queries .

本站所有内容均由网友自主分享,如有侵权内容或者违法行为,请及时联系站长删除,本站将根据实际情况进行积分奖励!请查看:免责声明

快速回复 返回顶部 返回列表