豆豆网

 找回密码
 立即注册

QQ登录

只需一步,快速开始

查看: 784|回复: 0

一份单层厂房污水处理厂紫外消毒池结构CAD施工图纸

[复制链接]

0

主题

0

帖子

776

积分

超级版主

Rank: 8Rank: 8

积分
776
发表于 2020-2-19 19:38:03 | 显示全部楼层 |阅读模式

该帖子包含附件可供参考学习和下载,您可以 搜索 更多您想要的资源


  • 建筑类别:工业建筑
  • 建筑高度类型:单层建筑
  • 建筑地上层数:1层
  • 图纸设计深度:施工图
  • 民用建筑设计使用年限:50年
  • 建筑设计结构形式:钢筋混凝土结构
  • 钢筋混凝土结构:框架
  • 结构安全等级:二级
  • 参考图纸:4张
  • 设计年代:近代

附件详情

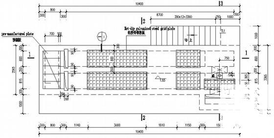
知名设计院设计。该项目为安哥拉社会住房项目某污水处理厂中的紫外消毒池结构施工图,全套图纸共4张,包括紫外消毒池-结构总图、紫外消毒池-结构配筋图、节点大样等。


污水处理厂房结构 - 1
第 1 张图
污水处理厂房结构 - 2
第 2 张图
污水处理厂房结构 - 3
第 3 张图
污水处理厂房结构 - 4
第 4 张图
以上是部分图纸截图,有些图框没有放大后再截图,可能截图里不清晰或者看不到内容,您可以在下载后查看具体内容

温馨提示:该资料由网友于2020-2-19 19:38:03上传分享,您可以下载该资料进行学习和参考,如有侵权内容或者违法行为,请及时联系站长删除,如有疑问,您可以在建筑施工专区发帖交流相关知识。

附件2099v11edfc2cwcsc01eccc101.rar

242.85 KB

下载  售价: 100 积分    赚积分

污水处理厂房结构相关帖子

回复

使用道具 举报

您需要登录后才可以回帖 登录 | 立即注册

本版积分规则

QQ|联系我们|豆豆网 ( 苏ICP备20004746号-1 )

GMT+8, 2025-12-27 23:17 , Processed in 0.016901 second(s), 27 queries .

本站所有内容均由网友自主分享,如有侵权内容或者违法行为,请及时联系站长删除,本站将根据实际情况进行积分奖励!请查看:免责声明

快速回复 返回顶部 返回列表