豆豆网

 找回密码
 立即注册

QQ登录

只需一步,快速开始

查看: 3062|回复: 0

50层框筒结构商务办公楼结构CAD施工图纸(7度抗震)(甲级桩基础).dwg

[复制链接]

0

主题

0

帖子

1436

积分

超级版主

Rank: 8Rank: 8

积分
1436
发表于 2020-12-27 19:40:33 | 显示全部楼层 |阅读模式

该帖子包含附件可供参考学习和下载,您可以 搜索 更多您想要的资源


  • 建筑类别:办公,商业

  • 建筑高度:超高层建筑

  • 地上层数:50层

  • 地下层数:3层

  • 图纸设计深度:施工图

  • 民用建筑设计使用年限:50年

  • 建筑结构形式:钢筋混凝土结构

  • 钢筋混凝土结构:框架核心筒

  • 基础形式 :桩基础

  • 结构安全等级:二级

  • 地基基础设计等级:甲级

  • 抗震设防烈度:7度抗震

  • 风压:0.90kN/平方米

  • 地下室功能:车库,商业

  • 参考图纸:100张

  • 设计年代:近代

附件详情

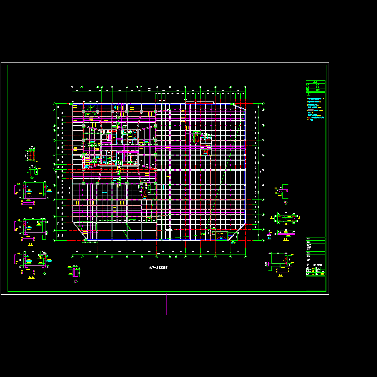
该项目是超高层写字楼项目地点位于深圳,地下三层,地上裙房四层,办公塔楼屋面高度为200.00米(外檐设计高度为218.00米),共53层(包括三层避难层);人防地下室按六级人防设计,防火等级为丙级; 本建筑的设计使用年限为70年。 建筑用地面积:7259平方米;总建筑面积: 119035平方米;框筒结构,人工挖孔灌注桩基础,基础设计等级为甲级。
该资料包含:桩基础图,地下部分梁板配筋图,墙柱布置图,地上梁板配筋图,核心筒剪力墙图,人防口部图,坡道结构图,楼梯图等共计100多张图。
分享投稿时间:近几年

桩基础图

框架柱平面布置图

三十六~四十二层梁平法施工图

四层梁平法施工图

四层板配筋图

坡道结构图

人防口部图

地下二.三层核心筒剪力墙平法施工图

五十一层板配筋图

d0pm.dwg
d0pm.dwg
d1pm.dwg
d1pm.dwg
d2pm.dwg
d2pm.dwg
dt1.dwg
dt1.dwg
dt2.dwg
dt2.dwg
dt3.dwg
dt3.dwg
dt4.dwg
dt4.dwg
dt5.dwg
dt5.dwg
口部.dwg
口部.dwg
坡道.dwg
坡道.dwg
以上是部分图纸截图,有些图框没有放大后再截图,可能截图里不清晰或者看不到内容,您可以在下载后查看具体内容

附件2099v11e2wswfsfsdw0sf1w.rar

14.92 MB

下载  售价: 100 积分    赚积分

框筒结构办公楼相关帖子

回复

使用道具 举报

您需要登录后才可以回帖 登录 | 立即注册

本版积分规则

QQ|联系我们|豆豆网 ( 苏ICP备20004746号-1 )

GMT+8, 2025-12-21 11:59 , Processed in 0.016729 second(s), 27 queries .

本站所有内容均由网友自主分享,如有侵权内容或者违法行为,请及时联系站长删除,本站将根据实际情况进行积分奖励!请查看:免责声明

快速回复 返回顶部 返回列表