豆豆网

 找回密码
 立即注册

QQ登录

只需一步,快速开始

查看: 2120|回复: 0

8层大型办公楼电气CAD施工图纸

[复制链接]

0

主题

0

帖子

1596

积分

超级版主

Rank: 8Rank: 8

积分
1596
发表于 2020-2-19 23:22:54 | 显示全部楼层 |阅读模式

该帖子包含附件可供参考学习和下载,您可以 搜索 更多您想要的资源


  • 建筑类别:办公,其他
  • 建筑高度类型:高层建筑
  • 建筑设计结构形式:其他结构
  • 建筑设计面积:8721.86平方米
  • 建筑地上层数:8层
  • 建筑地下层数:1层
  • 图纸设计深度:竣工图
  • 参考图纸:60张
  • 设计年代:近代
  • 地下室用途:车库,其它
  • 负荷等级:二级
  • 火灾保护分级:二级
  • 接地方式:TN-S
  • 项目所在地:广东
  • 强电设计:低压配电,电气照明,建筑物防雷,接地安全,其它
  • 弱电设计: 火灾自动报警系统 ,出入口控制系统,通信系统,有线电视和卫星接收系统,信息网络系统

附件详情

  • 1、电气设计说明
  • 2、配电系统图
  • 3、网络及电话系统图
  • 4、门禁及有线电视系统图
  • 5、配电平面图
  • 6、 照明平面图
  • 7、插座平面图
  • 8、动力平面图
  • 9、 弱电平面图
  • 10、门禁平面图
  • 11、电气总平面示意图

附件详情

该附件为[深圳]大型办公楼全套电气施工图纸60张。
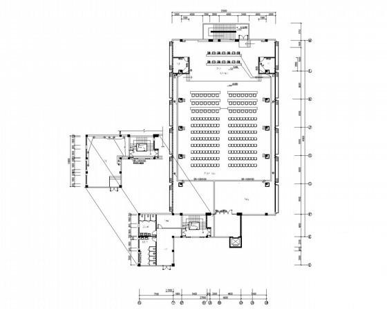
项目概要:办公楼主楼为二类高层建筑,共8层,框架结构,高25.1米,建筑设计面积:8721.86平方米,其中地下室:998.13平方米。 附楼为4层框架结构,高23.25米,附楼与主楼相连。其中主楼一~七层改造,半地下室、八楼及屋顶局部改造,副楼二~四楼改造,一楼局部改造,室外网球场、门卫室、副楼配电房改造。
设计范围:强电部分:220V/380V配电系统;动力、照明配电系统;防雷接地、安全保护等系统;弱电部分:网络电话系统、有线电视系统、消防系统、门禁系统。
......
编制与,总共60张。


附楼三层弱电平面图

主楼二层门禁平面图

主楼四层插座平面图

网络及电话系统图

主楼配电系统图

第 1 张图
第 1 张图
第 2 张图
第 2 张图
第 3 张图
第 3 张图
第 4 张图
第 4 张图
第 5 张图
第 5 张图
第 6 张图
第 6 张图
以上是部分图纸截图,有些图框没有放大后再截图,可能截图里不清晰或者看不到内容,您可以在下载后查看具体内容

温馨提示:该资料由网友于2020-2-19 23:22:54上传分享,您可以下载该资料进行学习和参考,如有侵权内容或者违法行为,请及时联系站长删除,如有疑问,您可以在电气工程专区发帖交流相关知识。

附件2099v11edecdcw11c1e021se0s.rar

7.6 MB

下载  售价: 100 积分    赚积分

相关帖子

回复

使用道具 举报

您需要登录后才可以回帖 登录 | 立即注册

本版积分规则

QQ|联系我们|豆豆网 ( 苏ICP备20004746号-1 )

GMT+8, 2025-12-21 00:11 , Processed in 0.017899 second(s), 27 queries .

本站所有内容均由网友自主分享,如有侵权内容或者违法行为,请及时联系站长删除,本站将根据实际情况进行积分奖励!请查看:免责声明

快速回复 返回顶部 返回列表