豆豆网

 找回密码
 立即注册

QQ登录

只需一步,快速开始

查看: 1973|回复: 0

18层住宅楼电气CAD施工图纸

[复制链接]

0

主题

0

帖子

1488

积分

超级版主

Rank: 8Rank: 8

积分
1488
发表于 2020-2-20 09:14:50 | 显示全部楼层 |阅读模式

该帖子包含附件可供参考学习和下载,您可以 搜索 更多您想要的资源


  • 建筑类别:住宅
  • 建筑高度类型:高层建筑
  • 建筑设计结构形式:钢筋混凝土结构
  • 建筑地上层数:18层
  • 建筑地下层数:1层
  • 图纸设计深度:施工图
  • 参考图纸:19张
  • 地下室用途:车库
  • 强电设计: 供配电系统 ,低压配电,电气照明,建筑物防雷,接地安全
  • 弱电设计: 火灾自动报警系统 ,通信系统,有线电视和卫星接收系统,信息网络系统
  • 防雷等级:第三类

附件详情

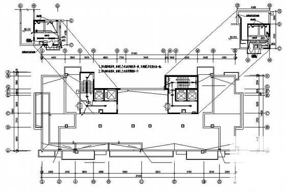
  • 一、电气设计说明
  • 二、竖向配电系统图
  • 三、配电箱系统图
  • 四、弱电系统图
  • 五、照明电气平面图
  • 六、 弱电平面图
  • 七、地下层消防平面图
  • 八、防雷接地平面图

附件详情

该项目为天津某18层住宅楼全套电气施工,设计范围包括:电气干线系统,电气施工设计说明,配电系统,弱电系统,各层照明平面,机房层消防平面,屋顶防雷平面等。

图2

图3

总缩略图

第 1 张图
第 1 张图
第 2 张图
第 2 张图
第 3 张图
第 3 张图
第 4 张图
第 4 张图
以上是部分图纸截图,有些图框没有放大后再截图,可能截图里不清晰或者看不到内容,您可以在下载后查看具体内容

温馨提示:该资料由网友于2020-2-20 09:14:50上传分享,您可以下载该资料进行学习和参考,如有侵权内容或者违法行为,请及时联系站长删除,如有疑问,您可以在电气工程专区发帖交流相关知识。

附件2099v11edeccsfece1e2d2fc02.rar

933.52 KB

下载  售价: 100 积分    赚积分

回复

使用道具 举报

您需要登录后才可以回帖 登录 | 立即注册

本版积分规则

QQ|联系我们|豆豆网 ( 苏ICP备20004746号-1 )

GMT+8, 2025-12-28 23:26 , Processed in 0.029361 second(s), 28 queries .

本站所有内容均由网友自主分享,如有侵权内容或者违法行为,请及时联系站长删除,本站将根据实际情况进行积分奖励!请查看:免责声明

快速回复 返回顶部 返回列表