豆豆网

 找回密码
 立即注册

QQ登录

只需一步,快速开始

查看: 2361|回复: 0

一份6层酒店改造工程电气设计CAD施工图纸

[复制链接]

0

主题

0

帖子

1322

积分

超级版主

Rank: 8Rank: 8

积分
1322
发表于 2020-2-20 14:22:15 | 显示全部楼层 |阅读模式

该帖子包含附件可供参考学习和下载,您可以 搜索 更多您想要的资源


  • 建筑类别:商业
  • 建筑高度类型:多层建筑
  • 建筑设计面积:8000平方米
  • 建筑地上层数:6层
  • 图纸设计深度:施工图
  • 参考图纸:26张
  • 负荷等级:二级
  • 接地方式:TN-C-S
  • 强电设计:配变电所,低压配电,电气照明,建筑物防雷,接地安全
  • 弱电设计: 火灾自动报警系统 ,通信系统,有线电视和卫星接收系统,信息网络系统

附件详情

  • 一、电气设计说明
  • 二、配电箱系统图
  • 三、弱电系统图
  • 四、 照明平面图
  • 五、插座动力平面图
  • 六、 弱电平面图
  • 七、防雷接地平面图

附件详情

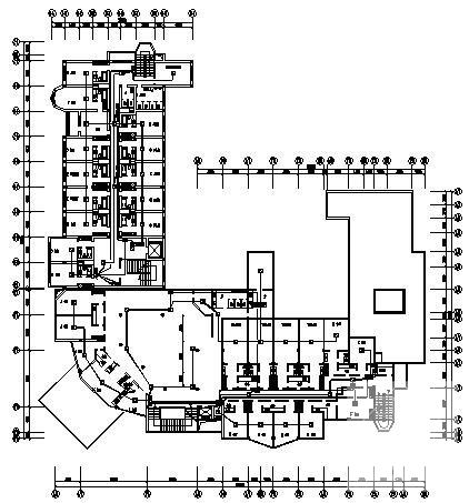
本稿件是某六层酒店改造工程电气施工图纸,工程建筑面积约为8000平米,改造后建筑使用功能为客房、餐饮;建筑使用大空调系统。电气设计包含配电系统设计、照明设计、插座动力系统、消防自动报警系统、有线电视、广播系统等。

酒店改造电气 - 1
第 1 张图
酒店改造电气 - 2
第 2 张图
酒店改造电气 - 3
第 3 张图
酒店改造电气 - 4
第 4 张图
以上是部分图纸截图,有些图框没有放大后再截图,可能截图里不清晰或者看不到内容,您可以在下载后查看具体内容

温馨提示:该资料由网友于2020-2-20 14:22:15上传分享,您可以下载该资料进行学习和参考,如有侵权内容或者违法行为,请及时联系站长删除,如有疑问,您可以在酒店建筑专区发帖交流相关知识。

附件2099v11edecccc0222s0dcsc0c.rar

1.92 MB

下载  售价: 100 积分    赚积分

酒店改造电气相关帖子

回复

使用道具 举报

您需要登录后才可以回帖 登录 | 立即注册

本版积分规则

QQ|联系我们|豆豆网 ( 苏ICP备20004746号-1 )

GMT+8, 2025-12-28 07:25 , Processed in 0.015665 second(s), 27 queries .

本站所有内容均由网友自主分享,如有侵权内容或者违法行为,请及时联系站长删除,本站将根据实际情况进行积分奖励!请查看:免责声明

快速回复 返回顶部 返回列表