豆豆网

 找回密码
 立即注册

QQ登录

只需一步,快速开始

查看: 1390|回复: 0

8层办公楼电气CAD施工图纸(火灾自动报警)

[复制链接]

0

主题

0

帖子

1350

积分

超级版主

Rank: 8Rank: 8

积分
1350
发表于 2020-2-20 19:27:25 | 显示全部楼层 |阅读模式

该帖子包含附件可供参考学习和下载,您可以 搜索 更多您想要的资源


  • 建筑类别:办公
  • 建筑高度类型:高层建筑
  • 建筑设计面积:5135平方米
  • 建筑地上层数:8层
  • 图纸设计深度:施工图
  • 参考图纸:29张
  • 设计年代:近代
  • 负荷等级:二级
  • 防雷等级:第三类
  • 接地方式:TN-C-S
  • 强电设计: 供配电系统 ,低压配电,电气照明,建筑物防雷,接地安全
  • 弱电设计: 火灾自动报警系统

附件详情

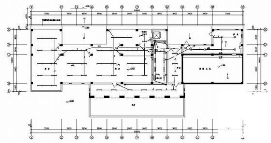
该项目为湖北某八层检察院办公楼全套电气施工,设计范围包括:供配电,照明, 防雷接地 ,火灾自动报警等。

第 1 张图
第 1 张图
第 2 张图
第 2 张图
以上是部分图纸截图,有些图框没有放大后再截图,可能截图里不清晰或者看不到内容,您可以在下载后查看具体内容

温馨提示:该资料由网友于2020-2-20 19:27:25上传分享,您可以下载该资料进行学习和参考,如有侵权内容或者违法行为,请及时联系站长删除,如有疑问,您可以在电气工程专区发帖交流相关知识。

附件2099v11edec2c2e1decf12fce1.rar

910.34 KB

下载  售价: 100 积分    赚积分

相关帖子

回复

使用道具 举报

您需要登录后才可以回帖 登录 | 立即注册

本版积分规则

QQ|联系我们|豆豆网 ( 苏ICP备20004746号-1 )

GMT+8, 2025-11-18 13:52 , Processed in 0.017923 second(s), 28 queries .

本站所有内容均由网友自主分享,如有侵权内容或者违法行为,请及时联系站长删除,本站将根据实际情况进行积分奖励!请查看:免责声明

快速回复 返回顶部 返回列表