豆豆网

 找回密码
 立即注册

QQ登录

只需一步,快速开始

查看: 2487|回复: 0

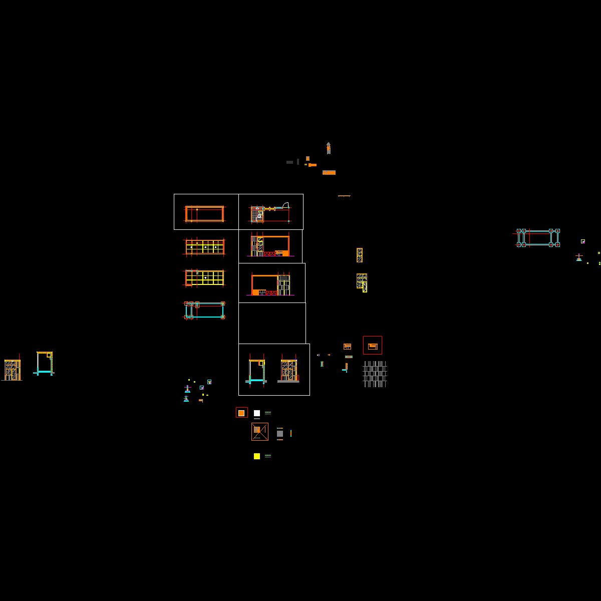
时代典雅住宅B型入口景观CAD施工图纸设计.dwg

[复制链接]

0

主题

0

帖子

1193

积分

超级版主

Rank: 8Rank: 8

积分
1193
发表于 2021-1-22 20:44:41 | 显示全部楼层 |阅读模式

该帖子包含附件可供参考学习和下载,您可以 搜索 更多您想要的资源


  • 地形地貌:平地

  • 档次定位:商住两用,高档居住区

  • 绿地类型:小区游园

  • 图纸设计深度 :施工图

  • 项目地址:广东

  • 图纸设计风格:现代风格

  • 图纸设计格式:天正建筑CAD 7.0,CAD2000

  • 景观设施:亭廊花架,平台栈道汀步,座凳座椅,景墙围墙,驳岸挡土墙,水景设计,铺装设计

附件详情: [广州]时代典雅住宅B型入口景观施工图设计

该资料包含:主入口门楼详图、大样详图、中轴水景详图 等。

相关链接:

[广州]时代典雅住宅入口A3型景观施工图设计

[广州]时代典雅住宅B型入口景观施工图设计

[广州]时代典雅住宅C型入口景观施工图设计

[广州]时代典雅住宅D1型入口景观施工图设计

[广州]时代典雅住宅D2型入口景观施工图设计

[广东]时代典雅住宅小型泳池景观施工图设计

[广东]时代典雅住宅售楼部前广场施工图设计



时代典雅住宅B型入口景观施工图设计 (1)

时代典雅住宅B型入口景观施工图设计 (2)

时代典雅住宅B型入口景观施工图设计 (3)

时代典雅住宅B型入口景观施工图设计 (4)

时代典雅住宅B型入口景观施工图设计 (5)

时代典雅住宅B型入口景观施工图设计 (6)

时代典雅住宅B型入口景观施工图设计 (7)

时代典雅住宅B型入口景观施工图设计 (8)

时代典雅住宅B型入口景观施工图设计 (9)

时代典雅住宅B型入口景观施工图设计 (10)

时代典雅住宅B型入口景观施工图设计 (11)


brk-1 b型入口.dwg
brk-1 b型入口.dwg
brk-2 b型入口岗亭.dwg
brk-2 b型入口岗亭.dwg
以上是部分图纸截图,有些图框没有放大后再截图,可能截图里不清晰或者看不到内容,您可以在下载后查看具体内容

附件2099v11ewcef2w2s11ccscd.rar

5.34 MB

下载  售价: 100 积分    赚积分

住宅施工图设计相关帖子

回复

使用道具 举报

您需要登录后才可以回帖 登录 | 立即注册

本版积分规则

QQ|联系我们|豆豆网 ( 苏ICP备20004746号-1 )

GMT+8, 2025-11-19 00:45 , Processed in 0.016544 second(s), 27 queries .

本站所有内容均由网友自主分享,如有侵权内容或者违法行为,请及时联系站长删除,本站将根据实际情况进行积分奖励!请查看:免责声明

快速回复 返回顶部 返回列表