豆豆网

 找回密码
 立即注册

QQ登录

只需一步,快速开始

查看: 2991|回复: 0

2层独栋别墅建筑施工CAD图纸设计

[复制链接]

0

主题

0

帖子

573

积分

超级版主

Rank: 8Rank: 8

积分
573
发表于 2021-2-2 20:02:40 | 显示全部楼层 |阅读模式

该帖子包含附件可供参考学习和下载,您可以 搜索 更多您想要的资源


  • 别墅类型:小康农居

  • 建筑高度:多层建筑

  • 外立面材料:石材

  • 幕墙面板材料:组合幕墙

  • 建筑结构形式:钢筋混凝土结构

  • 图纸设计深度:施工图

  • 项目地址:广东

  • 图纸设计风格:欧陆风格

  • 图纸设计流派:artdeco

  • 图纸设计格式:CAD2000

附件详情

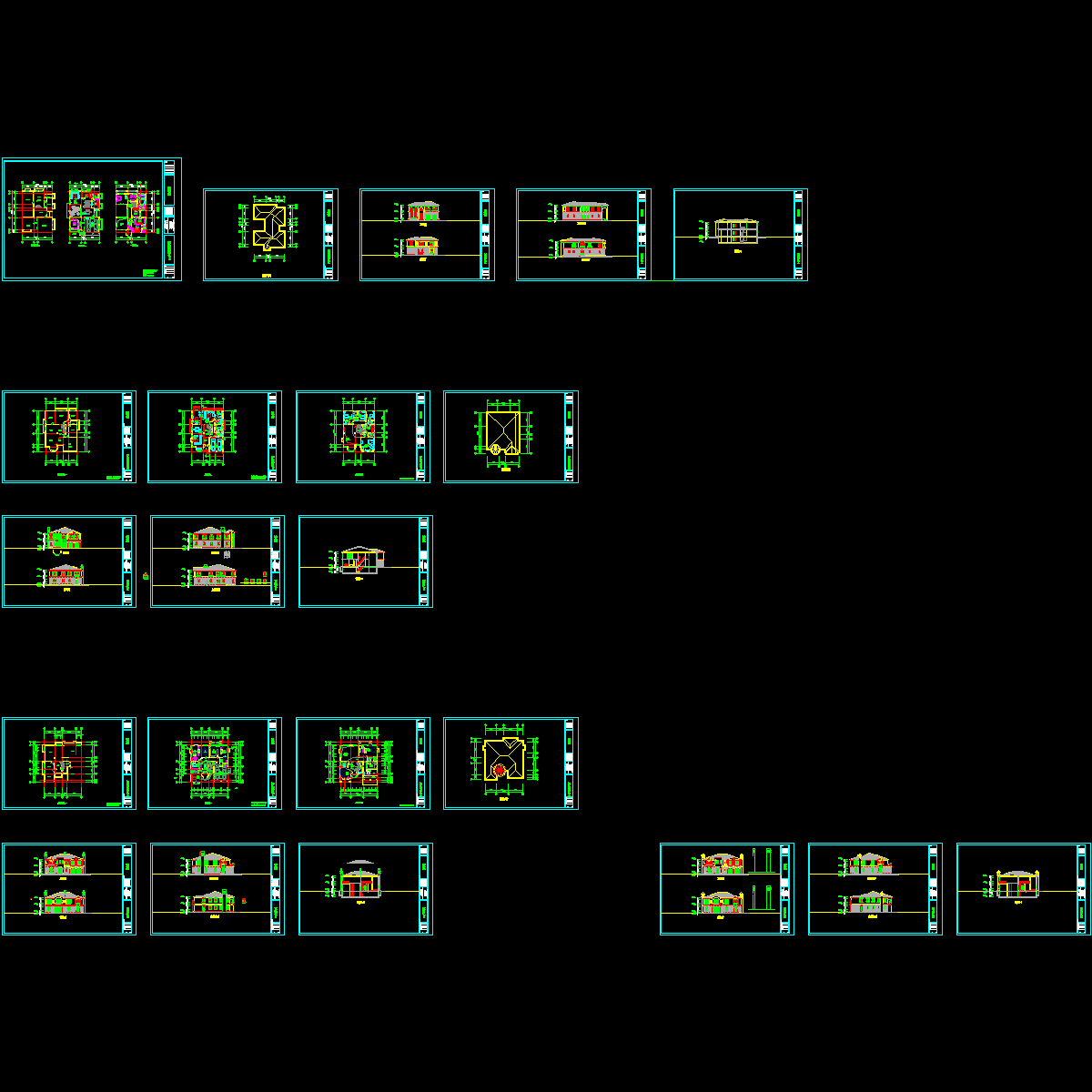
本户型为2层独栋别墅,建筑面积592.89平米,地上361.26平米,地下230.63平米,地面建筑高度6.2米。首层设有客厅、车库、餐厅、厨房、家庭室、卫生间、卧室;二层设有主卧、3间卧室、主卫生间、2间小卫生间。

本户型外观、造型富有时代气息、整体平面布局紧凑、功能分区合理,房间尺度设计适宜,空间利用率高。

立面图

1-1剖面图

北立面图

地下室平面图

楼层平面图

剖面图


别墅建筑图纸设计 - 1
第 1 张图
以上是部分图纸截图,有些图框没有放大后再截图,可能截图里不清晰或者看不到内容,您可以在下载后查看具体内容

附件2099v11ewcsfs1ee20wsdec.rar

6.57 MB

下载  售价: 100 积分    赚积分

别墅建筑图纸设计相关帖子

回复

使用道具 举报

您需要登录后才可以回帖 登录 | 立即注册

本版积分规则

QQ|联系我们|豆豆网 ( 苏ICP备20004746号-1 )

GMT+8, 2025-12-16 14:39 , Processed in 0.018306 second(s), 27 queries .

本站所有内容均由网友自主分享,如有侵权内容或者违法行为,请及时联系站长删除,本站将根据实际情况进行积分奖励!请查看:免责声明

快速回复 返回顶部 返回列表