豆豆网

 找回密码
 立即注册

QQ登录

只需一步,快速开始

查看: 1924|回复: 0

6层厂套电气施工CAD图纸(10KV变电所设计)

[复制链接]

0

主题

0

帖子

1737

积分

超级版主

Rank: 8Rank: 8

积分
1737
发表于 2020-2-21 08:54:24 | 显示全部楼层 |阅读模式

该帖子包含附件可供参考学习和下载,您可以 搜索 更多您想要的资源


  • 建筑类别:工业建筑,其他
  • 建筑高度类型:多层建筑
  • 建筑设计结构形式:钢筋混凝土结构
  • 建筑设计面积:10424平方米
  • 建筑地上层数:6层
  • 图纸设计深度:施工图
  • 参考图纸:25张
  • 设计年代:近代
  • 负荷等级:二级
  • 防雷等级:第三类
  • 火灾保护分级:二级
  • 接地方式:TN-S
  • 项目所在地:上海
  • 强电设计:供配电系统,配变电所,低压配电,电气照明,建筑物防雷,接地安全,其它
  • 弱电设计: 火灾自动报警系统 ,视频监控系统,综合布线系统,有线电视和卫星接收系统

附件详情

  • 1、电气设计说明
  • 2、配电箱系统图
  • 3、弱电系统图
  • 4、火灾报警系统图
  • 5、干线和变电所系统图
  • 6、防雷接地平面图
  • 7、消防平面图
  • 8、基坑及底层照明平面图
  • 9、基坑及底层动力平面图
  • 10、基坑及底层接地平面图
  • 11、 防雷平面图
  • 12、弱电平面图

附件详情

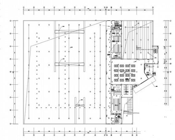
该附件是[上海]多层厂房全套电气施工图纸(含10KV 变电所设计 ),总共25张。
项目概要:含一个多层厂房和附属建筑。厂房部分二层,局部四层,高23.5m,层高为6m,建筑面积为10424m2。厂房火灾危险性为丁类,防火等级为二级。
设计范围:10KV变电所设计,动力配电系统设计,照明系统设计,建筑物防雷接地系统设计,该资料照明部分灯具安装按常规布置考虑,如涉及装修的房间及场所,待二次装饰设计解决。弱电:综合布线系统,有线电视系统,监控系统,火灾自动报警系统。
......
,共25张。

变电所接地平面图

二层消防平面图

基坑及底层接地平面图

火灾报警系统图及说明

配电箱系统图

第 1 张图
第 1 张图
第 2 张图
第 2 张图
第 3 张图
第 3 张图
第 4 张图
第 4 张图
第 5 张图
第 5 张图
第 6 张图
第 6 张图
以上是部分图纸截图,有些图框没有放大后再截图,可能截图里不清晰或者看不到内容,您可以在下载后查看具体内容

温馨提示:该资料由网友于2020-2-21 08:54:24上传分享,您可以下载该资料进行学习和参考,如有侵权内容或者违法行为,请及时联系站长删除,如有疑问,您可以在电气工程专区发帖交流相关知识。

附件2099v11edeewcfs1wcwc2c0e00.rar

5.7 MB

下载  售价: 100 积分    赚积分

相关帖子

回复

使用道具 举报

您需要登录后才可以回帖 登录 | 立即注册

本版积分规则

QQ|联系我们|豆豆网 ( 苏ICP备20004746号-1 )

GMT+8, 2025-12-27 13:30 , Processed in 0.023459 second(s), 27 queries .

本站所有内容均由网友自主分享,如有侵权内容或者违法行为,请及时联系站长删除,本站将根据实际情况进行积分奖励!请查看:免责声明

快速回复 返回顶部 返回列表