豆豆网

 找回密码
 立即注册

QQ登录

只需一步,快速开始

查看: 1713|回复: 0

一份知名旅游区内办公楼电气CAD施工图纸(甲级院设计)(火灾自动报警)

[复制链接]

0

主题

0

帖子

1096

积分

超级版主

Rank: 8Rank: 8

积分
1096
发表于 2020-2-21 18:15:37 | 显示全部楼层 |阅读模式

该帖子包含附件可供参考学习和下载,您可以 搜索 更多您想要的资源


附件详情

  • 设计说明及图例
  • 配电箱系统图
  • 弱电系统图
  • 干线平面图
  • 照明平面图
  • 弱电平面图
  • 屋顶 防雷平面图
  • 基础接地平面图
  • 火灾自动报警系统

附件详情

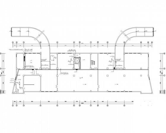
该项目为六层办公楼项目,结构类型为框架结构.楼板现浇,建筑高度22.2米,建筑面积6057平米。设计时间为。


弱电平面图

照明平面图

系统图

甲级办公楼设计 - 1
第 1 张图
甲级办公楼设计 - 2
第 2 张图
甲级办公楼设计 - 3
第 3 张图
甲级办公楼设计 - 4
第 4 张图
以上是部分图纸截图,有些图框没有放大后再截图,可能截图里不清晰或者看不到内容,您可以在下载后查看具体内容

温馨提示:该资料由网友于2020-2-21 18:15:37上传分享,您可以下载该资料进行学习和参考,如有侵权内容或者违法行为,请及时联系站长删除,如有疑问,您可以在电气工程专区发帖交流相关知识。

附件2099v11edeec10few01c2dc22s.zip

1.47 MB

下载  售价: 100 积分    赚积分

甲级办公楼设计相关帖子

回复

使用道具 举报

您需要登录后才可以回帖 登录 | 立即注册

本版积分规则

QQ|联系我们|豆豆网 ( 苏ICP备20004746号-1 )

GMT+8, 2025-12-27 19:46 , Processed in 0.020000 second(s), 27 queries .

本站所有内容均由网友自主分享,如有侵权内容或者违法行为,请及时联系站长删除,本站将根据实际情况进行积分奖励!请查看:免责声明

快速回复 返回顶部 返回列表